Добросовестная работа

Леонид Зверев Levaz

Рейтинг: 93
не верифицирован
Всего отзывов: 0
  • Активность:
  • Работ в портфолио: 3
  • Типовых услуг: 0
  • Работ на продажу: 0
Был на сайте:

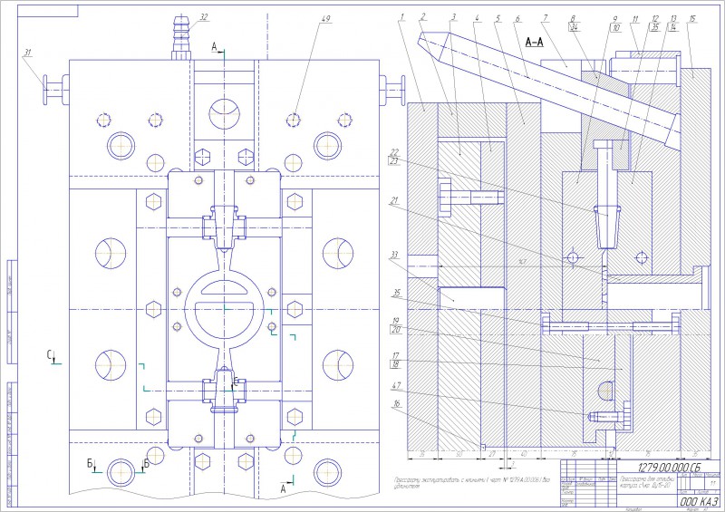
прессформы для литья цветных сплавов и штампы

Описание

Проектирую формы для литья под давлением цветных сплавов, штампы для "объёмной горячей" штамповки, штампы для холодной штамповки, знаю процесс "непрерывной разливки латунного профиля", знаю и проектирую формы для литья в "землю".

Презентация проекта

pic2873198.jpg

Оценили проект:

0