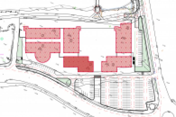
План паркинга в строящемся ТЦ на проспекте Боголюбова, Дубна
Для полной функциональности этого сайта необходимо включить JavaScript.
Дубна
На сайте с: 15.08.2016
Николай Пятов
NokolaiArch
Рейтинг: 63
не верифицирован
Всего отзывов:
0
Работ в портфолио:
13
Типовых услуг:
0
Работ на продажу:
0
Был на сайте:
2017-08-30 в 00:51
89299642203
inbox
Вконтакте
Предложить работу
Добавить в избранное
Добавить рекомендацию
Пожаловаться
Дизайн пространства
7
0
План паркинга в строящемся ТЦ на проспекте Боголюбова, Дубна
Используемые навыки:
Архитектура зданий и сооружений
Описание
Решение
Результат
Соавторы
Презентация проекта
Примеры реализации
Описание
Презентация проекта
Оценили проект:
0
×
Оценили проект
×
Авторизация
Для того чтобы оценивать проекты, вам нужно войти на сайт
Другие проекты
Все проекты
Макет Москва
Работа 3031451
ТРЦ PHU DONG PARK
FREELANCE.RU
Toggle navigation
Нанять фрилансера
Заказчику
Найти по специализации
Найти по услугам
Провести конкурс
Разместить задание
Другое
Найти работу
Фрилансеру
Найти задание
Присоединиться к команде
Участвовать в конкурсе
Другое
Возможности
Для заказчика
Для фрилансера
Вход
Разместить задание
▲