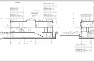
Разрезы по зданию СПА центра
Для полной функциональности этого сайта необходимо включить JavaScript.
Казахстан
архитектор гражданских и пром. зданий, интерьеров
Архитектор Роман
architrav
Рейтинг: 1 369
не верифицирован
Всего отзывов:
0
Нейросаммари
Активность:
Работ в портфолио:
61
Типовых услуг:
0
Работ на продажу:
0
Зарегистрирован:
29.09.2014
Был на сайте:
2026-01-30 в 14:44
inbox
architrav@bk.ru
Предложить работу
Добавить в избранное
Добавить рекомендацию
Пожаловаться
Дизайн пространства
37
0
Разрезы по зданию СПА центра
Используемые навыки:
Дизайн интерьеров
Описание
Решение
Результат
Соавторы
Презентация проекта
Примеры реализации
Описание
.
Презентация проекта
Оценили проект:
0
×
Оценили проект
×
Авторизация
Для того чтобы оценивать проекты, вам нужно войти на сайт
Другие проекты
Все проекты
Типовой проект 1 эт. каркасного дома. 142.3 кв. м.
Проект комбинированного дома на конкурс
Типовой проект 2 эт. дома из монолитного ж/б. 283.3 кв. м.
FREELANCE.RU
Toggle navigation
Нанять фрилансера
Заказчику
Найти по специализации
Найти по услугам
Провести конкурс
Разместить задание
Виртуальный HR
Найти студию
Другое
Найти работу
Фрилансеру
Найти задание
Присоединиться к команде
Участвовать в конкурсе
Предложить услугу
Другое
Возможности
Для заказчика
Для фрилансера
Вход
Разместить задание
▲