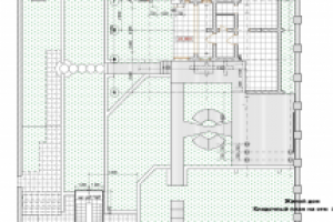
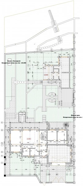
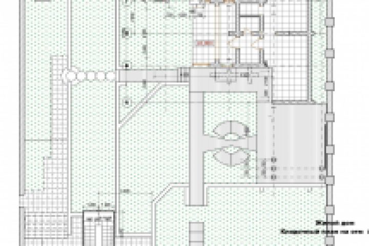
План коттедж Ступино
Для полной функциональности этого сайта необходимо включить JavaScript.
Коломна
Я представитель:
ЭКА Проект
Создаём пространство, в котором хочется жить.
Наталья Федотенкова
ekaproject
Рейтинг: 419
Паспорт верифицирован
Всего отзывов:
0
Нейросаммари
Работ в портфолио:
152
Типовых услуг:
2
Работ на продажу:
0
Стаж работы:
16 лет
Зарегистрирован:
02.04.2021
Образование:
Cпециалитет
Была на сайте:
2026-02-26 в 13:22
+7 (916) 434-79-20
inbox
telegram
whatsapp
www.eka-mel.ru
Предложить работу
Добавить в избранное
Добавить рекомендацию
Пожаловаться
Дизайн пространства
36
0
План коттедж Ступино
Используемые навыки:
Архитектурное проектирование
Описание
Решение
Результат
Соавторы
Презентация проекта
Примеры реализации
Описание
Презентация проекта
Оценили проект:
0
×
Оценили проект
×
Авторизация
Для того чтобы оценивать проекты, вам нужно войти на сайт
Другие проекты
Все проекты
Кухня, совмещенная с залом для молодой пары , Москва
Парилка
Беседка с менгалом
FREELANCE.RU
Toggle navigation
Нанять фрилансера
Заказчику
Найти по специализации
Найти по услугам
Провести конкурс
Разместить задание
Виртуальный HR
Найти студию
Другое
Найти работу
Фрилансеру
Найти задание
Присоединиться к команде
Участвовать в конкурсе
Предложить услугу
Другое
Возможности
Для заказчика
Для фрилансера
Вход
Разместить задание
▲