Доступное проектирование

cad4u

Рейтинг: 79
не верифицирован
Всего отзывов: 0
  • Работ в портфолио: 39
  • Типовых услуг: 0
  • Работ на продажу: 0
  • Зарегистрирован: 12.08.2017
Был на сайте:

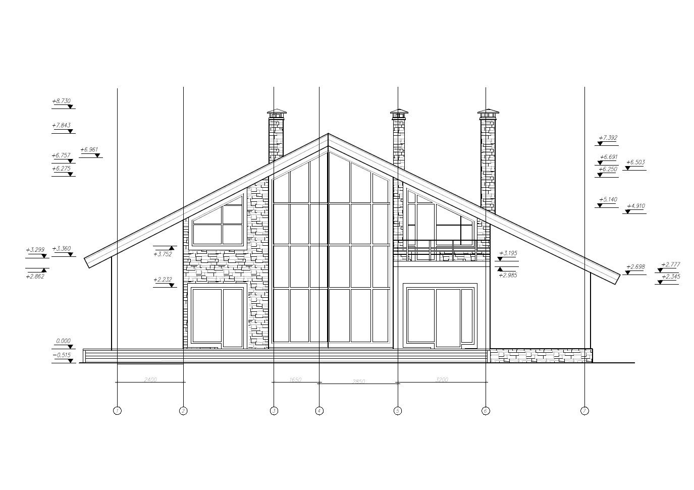
1x006-Проект 2 этажного дома 9.5x17 140м.кв.

Используемые навыки:

Описание

Стадия: Рабочий проект
Реализация проекта: Проект реализован в Ленинградской области
Разделы проекта:
АР - Архитектурные решения
КР - Конструктивные решения
ГП - Генеральный план
Площадь дома: 140 м.кв.
Материал дома: Газобетон, клееный брус, минераловатный утеплитель, фундамент монолитный
Отделка: ГКЛ, штукатурка, дерево

Ссылки на примеры реализации

 cad4u.ru/?product=1x006-%d0%bf%d1%80%d0%be%d0%b5%d...

Презентация проекта

pic3219768.jpg

Оценили проект:

0