Доступное проектирование

cad4u

Рейтинг: 79
не верифицирован
Всего отзывов: 0
  • Работ в портфолио: 39
  • Типовых услуг: 0
  • Работ на продажу: 0
  • Зарегистрирован: 12.08.2017
Был на сайте:

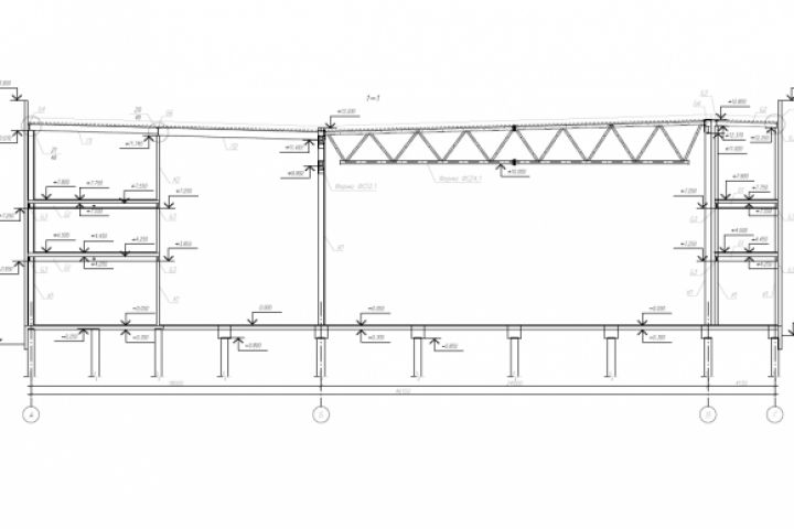
4x002-Проект здания склада с АБК 46.15x96 5700м.кв.

Описание

Стадия: Рабочий проект
Реализация проекта: Проект реализован в Московской области
Разделы проекта:
АР - Архитектурные решения
КР - Конструктивные решения
Площадь здания: 5700 м.кв.
Материал: Металл, монолит
Отделка: Сэндвич-панель

Ссылки на примеры реализации

 cad4u.ru/?product=4x002-%D0%BF%D1%80%D0%BE%D0%B5%D...

Презентация проекта

pic3219672.jpg

Оценили проект:

0