Рейтинг: 94
не верифицирован
Всего отзывов: 0
  • Работ в портфолио: 34
  • Типовых услуг: 0
  • Работ на продажу: 0
Был на сайте:

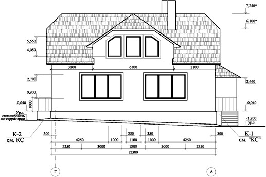
Индивидуальный жилой дом площадью 270 кв.м.

Описание

Рабочий проект (архитектурные решения) просторного коттеджа без изысков в строгом стиле, расположенного в поселке Парголово (Санкт-Петербург).
Наружные стены из пенобетона с утеплителем и обшивкой сайдингом, кровля - утепленная металлочерепица по деревянным стропилам. Перекрытия - по металлическим балкам.

Площадь застройки: 147 кв.м.
Общая площадь: 270 кв.м.
Жилая площадь: 106 кв.м.
Этажность: цокольный этаж + 1 + мансардный этаж
Высота потолков: 3 м (1 этаж);
Строительный объем: 1024 куб.м.

Ссылки на примеры реализации

 leantr.ru/posts/id/32

Презентация проекта

pic2394713.jpg

Оценили проект:

0