Качество во всем!

Максим Пшеницын drgerbert

Рейтинг: 75
не верифицирован
Всего отзывов: 0
  • Работ в портфолио: 5
  • Типовых услуг: 0
  • Работ на продажу: 0
  • Возраст: 37 лет
  • Зарегистрирован: 22.09.2014
Был на сайте:

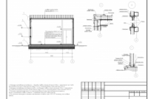
Проект котельной 6х6 м

Описание

Котельная 6х6 м, металлокаркас, односкатное покрытие, фундамент плитный. Ограждающие конструкции – сэндвич панели Теплант

Презентация проекта

pic2103658.jpg

Оценили проект:

0