Схема котлована
Для полной функциональности этого сайта необходимо включить JavaScript.
Ростов-на-Дону
На сайте с: 05.04.2015
Вадим Данилов
V.D
Рейтинг: 86
не верифицирован
Всего отзывов:
0
Работ в портфолио:
26
Типовых услуг:
0
Работ на продажу:
0
Был на сайте:
2017-11-22 в 23:02
inbox
Предложить работу
Добавить в избранное
Добавить рекомендацию
Пожаловаться
Инженерия
61
0
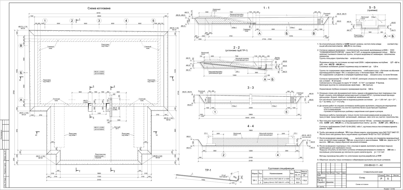
Схема котлована
Используемые навыки:
Чертежи/Схемы
Описание
Решение
Результат
Соавторы
Презентация проекта
Примеры реализации
Описание
Схема котлована
Презентация проекта
Оценили проект:
0
×
Оценили проект
×
Авторизация
Для того чтобы оценивать проекты, вам нужно войти на сайт
Другие проекты
Все проекты
Закрепление грунтов цементацией
Элементы монолитных ж.б. каркасов зданий - Колонны
Раскладка сборных плит покрытия склада
FREELANCE.RU
Toggle navigation
Нанять фрилансера
Заказчику
Найти по специализации
Найти по услугам
Провести конкурс
Разместить задание
Виртуальный HR
Другое
Найти работу
Фрилансеру
Найти задание
Присоединиться к команде
Участвовать в конкурсе
Другое
Возможности
Для заказчика
Для фрилансера
Вход
Разместить задание
▲