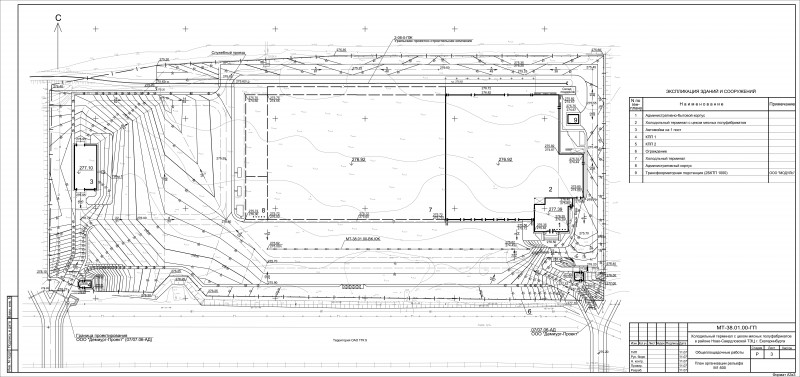
Холодильный терминал. Стадия Р. План организации рельефа
Для полной функциональности этого сайта необходимо включить JavaScript.
Екатеринбург
На сайте с: 10.07.2015
Евгения Бойкова
Tavilin
Рейтинг: 53
не верифицирован
Всего отзывов:
0
Опубликовала заданий:
1
Работ в портфолио:
3
Типовых услуг:
0
Работ на продажу:
0
Была на сайте:
2017-11-23 в 05:24
Предложить работу
Добавить в избранное
Добавить рекомендацию
Пожаловаться
Инженерия
21
0
Холодильный терминал. Стадия Р. План организации рельефа
Описание
Решение
Результат
Соавторы
Презентация проекта
Примеры реализации
Описание
Презентация проекта
Оценили проект:
0
×
Оценили проект
×
Авторизация
Для того чтобы оценивать проекты, вам нужно войти на сайт
Другие проекты
Все проекты
Многоэтажное офисное здание. Стадия Э
Холодильный терминал. Стади Р. План благоустройства
FREELANCE.RU
Toggle navigation
Нанять фрилансера
Заказчику
Найти по специализации
Найти по услугам
Провести конкурс
Разместить задание
Другое
Найти работу
Фрилансеру
Найти задание
Присоединиться к команде
Участвовать в конкурсе
Другое
Возможности
Для заказчика
Для фрилансера
Вход
Разместить задание
▲