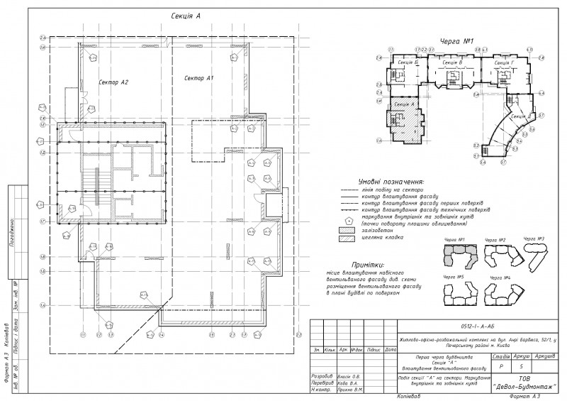
Проектриование НВФ (навесных вентилируемых фасадов)
Для полной функциональности этого сайта необходимо включить JavaScript.
Киев
38 лет
На сайте с: 21.03.2013
Александр Власик
Alexandr.Vlasik
Рейтинг: 102
не верифицирован
Всего отзывов:
0
Работ в портфолио:
42
Типовых услуг:
0
Работ на продажу:
0
Был на сайте:
2017-11-23 в 09:50
+380683584664
inbox
Предложить работу
Добавить в избранное
Добавить рекомендацию
Пожаловаться
Инженерия
14
0
Проектриование НВФ (навесных вентилируемых фасадов)
Используемые навыки:
Промышленное и гражданское строительство
Описание
Решение
Результат
Соавторы
Презентация проекта
Примеры реализации
Описание
Презентация проекта
Оценили проект:
0
×
Оценили проект
×
Авторизация
Для того чтобы оценивать проекты, вам нужно войти на сайт
Другие проекты
Все проекты
Объект г. Киев
Разработка технических каталогов
Курсовые работы по ТММ
FREELANCE.RU
Toggle navigation
Нанять фрилансера
Заказчику
Найти по специализации
Найти по услугам
Провести конкурс
Разместить задание
Виртуальный HR
Другое
Найти работу
Фрилансеру
Найти задание
Присоединиться к команде
Участвовать в конкурсе
Другое
Возможности
Для заказчика
Для фрилансера
Вход
Разместить задание
▲