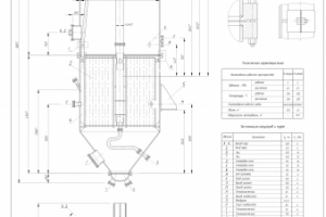
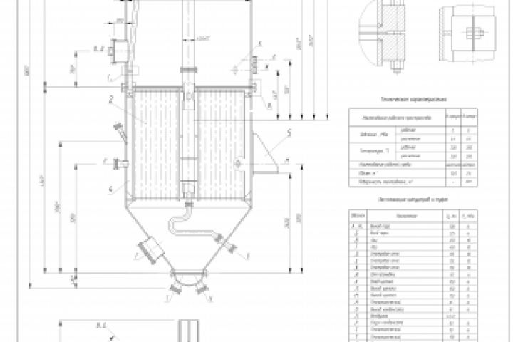
Аппарат выпарной
Для полной функциональности этого сайта необходимо включить JavaScript.
Волгоград
На сайте с: 17.07.2017
Андрей Сальников
ndrrew
Рейтинг: 57
не верифицирован
Всего отзывов:
0
Работ в портфолио:
17
Типовых услуг:
0
Работ на продажу:
0
Был на сайте:
2017-11-23 в 11:39
inbox
Предложить работу
Добавить в избранное
Добавить рекомендацию
Пожаловаться
Инженерия
5
0
Аппарат выпарной
Используемые навыки:
Машиностроение
Описание
Решение
Результат
Соавторы
Презентация проекта
Примеры реализации
Описание
Презентация проекта
Оценили проект:
0
×
Оценили проект
×
Авторизация
Для того чтобы оценивать проекты, вам нужно войти на сайт
Другие проекты
Все проекты
Испаритель
Расчет двускатной преднапряженной балки
Жилой дом с мансардой (ч.4)
FREELANCE.RU
Toggle navigation
Нанять фрилансера
Заказчику
Найти по специализации
Найти по услугам
Провести конкурс
Разместить задание
Другое
Найти работу
Фрилансеру
Найти задание
Присоединиться к команде
Участвовать в конкурсе
Другое
Возможности
Для заказчика
Для фрилансера
Вход
Разместить задание
▲