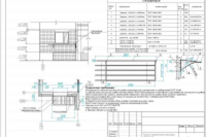
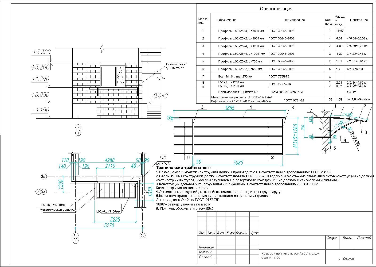
Козырек для приямка
Для полной функциональности этого сайта необходимо включить JavaScript.
Воронеж
Ольга Кошарная
Missscheme
Рейтинг: 80
не верифицирован
Всего отзывов:
0
Работ в портфолио:
10
Типовых услуг:
0
Работ на продажу:
0
Возраст:
36 лет
Зарегистрирован:
09.06.2016
Была на сайте:
2017-11-23 в 12:33
inbox
cat2133@yandex.ru
Предложить работу
Добавить в избранное
Добавить рекомендацию
Пожаловаться
Инженерия
37
0
Козырек для приямка
Используемые навыки:
Промышленное и гражданское строительство
Описание
Решение
Результат
Соавторы
Презентация проекта
Примеры реализации
Описание
Презентация проекта
Оценили проект:
0
×
Оценили проект
×
Авторизация
Для того чтобы оценивать проекты, вам нужно войти на сайт
Другие проекты
Все проекты
Конструкция ограждения из профлиста
Перепланировка квартир
Нежилая постройка из металлических конструкций
FREELANCE.RU
Toggle navigation
Нанять фрилансера
Заказчику
Найти по специализации
Найти по услугам
Провести конкурс
Разместить задание
Виртуальный HR
Найти студию
Другое
Найти работу
Фрилансеру
Найти задание
Присоединиться к команде
Участвовать в конкурсе
Предложить услугу
Другое
Возможности
Для заказчика
Для фрилансера
Вход
Разместить задание
▲