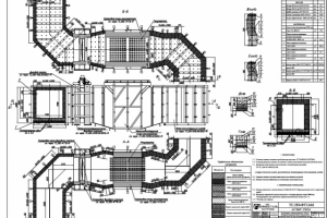
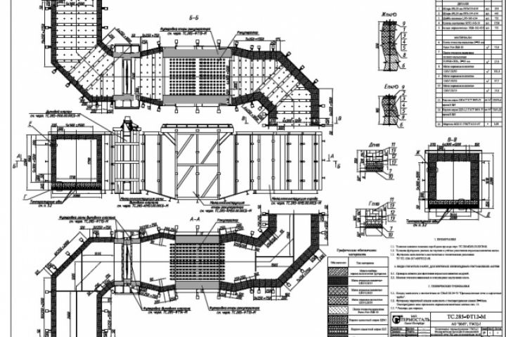
Футеровка дымопровода
Для полной функциональности этого сайта необходимо включить JavaScript.
Санкт-Петербург
36 лет
На сайте с: 28.05.2017
Андрей Крупеня
andrejkrupenya7
Рейтинг: 75
не верифицирован
Всего отзывов:
0
Работ в портфолио:
5
Типовых услуг:
0
Работ на продажу:
0
Был на сайте:
2017-11-23 в 14:07
+79217612571
inbox
andrejkrupenya@yandex.ru
Предложить работу
Добавить в избранное
Добавить рекомендацию
Пожаловаться
Инженерия
8
0
Футеровка дымопровода
Используемые навыки:
Чертежи/Схемы
Описание
Решение
Результат
Соавторы
Презентация проекта
Примеры реализации
Описание
Презентация проекта
Оценили проект:
0
×
Оценили проект
×
Авторизация
Для того чтобы оценивать проекты, вам нужно войти на сайт
Другие проекты
Все проекты
Дымопровод печи
Футеровка каркаса печи
Каркас проходной печи
FREELANCE.RU
Toggle navigation
Нанять фрилансера
Заказчику
Найти по специализации
Найти по услугам
Провести конкурс
Разместить задание
Другое
Найти работу
Фрилансеру
Найти задание
Присоединиться к команде
Участвовать в конкурсе
Другое
Возможности
Для заказчика
Для фрилансера
Вход
Разместить задание
▲