Решение любых инженерных задач!

Андрей Добряков AndreyDobryakov

Рейтинг: 76
не верифицирован
Всего отзывов: 0
Опубликовал заданий: 3
  • Работ в портфолио: 6
  • Типовых услуг: 0
  • Работ на продажу: 0
Был на сайте:

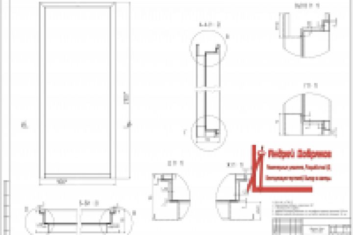
Дверной блок для многоквартирного дома.

Используемые навыки:

Описание

После замеров был разработан и изготовлен дверной блок из металла для крыши многоквартирного дома. Присутствие на всех стадиях производства этого изделия.

Презентация проекта

pic1821329.jpg

Оценили проект:

0