Рейтинг: 54
не верифицирован
Всего отзывов: 0
  • Работ в портфолио: 4
  • Типовых услуг: 0
  • Работ на продажу: 0
Был на сайте:

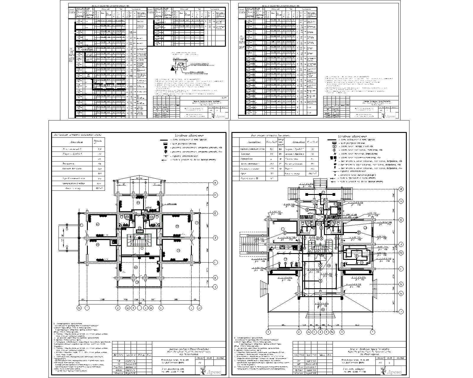
Индивидуальный жилой дом из рубленного бревна

Используемые навыки:

Описание

Проектирование системы внутреннего электроснабжения 3-х этажного жилого коттеджа из рубленного бревна.

Презентация проекта

pic2985023.jpg

Оценили проект:

0