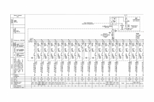
Принципиальная схема щитка освещения фасада
Для полной функциональности этого сайта необходимо включить JavaScript.
Москва
42 года
На сайте с: 14.04.2015
Наполни светом свою жизнь!
Екатерина Демчук
Lyussy
Рейтинг: 75
не верифицирован
Всего отзывов:
0
Работ в портфолио:
5
Типовых услуг:
0
Работ на продажу:
0
Была на сайте:
2017-11-25 в 10:36
+79773544016
inbox
9773544016@mail.ru
Предложить работу
Добавить в избранное
Добавить рекомендацию
Пожаловаться
Инженерия
21
0
Принципиальная схема щитка освещения фасада
Используемые навыки:
Чертежи/Схемы
Описание
Решение
Результат
Соавторы
Презентация проекта
Примеры реализации
Описание
Презентация проекта
Оценили проект:
0
×
Оценили проект
×
Авторизация
Для того чтобы оценивать проекты, вам нужно войти на сайт
Другие проекты
Все проекты
Розеточная сеть
Освещение ТЦ
Распределение освещенности в изолюксах
FREELANCE.RU
Toggle navigation
Нанять фрилансера
Заказчику
Найти по специализации
Найти по услугам
Провести конкурс
Разместить задание
Другое
Найти работу
Фрилансеру
Найти задание
Присоединиться к команде
Участвовать в конкурсе
Другое
Возможности
Для заказчика
Для фрилансера
Вход
Разместить задание
▲