Рейтинг: 52
не верифицирован
Всего отзывов: 0
  • Работ в портфолио: 12
  • Типовых услуг: 0
  • Работ на продажу: 0
Был на сайте:

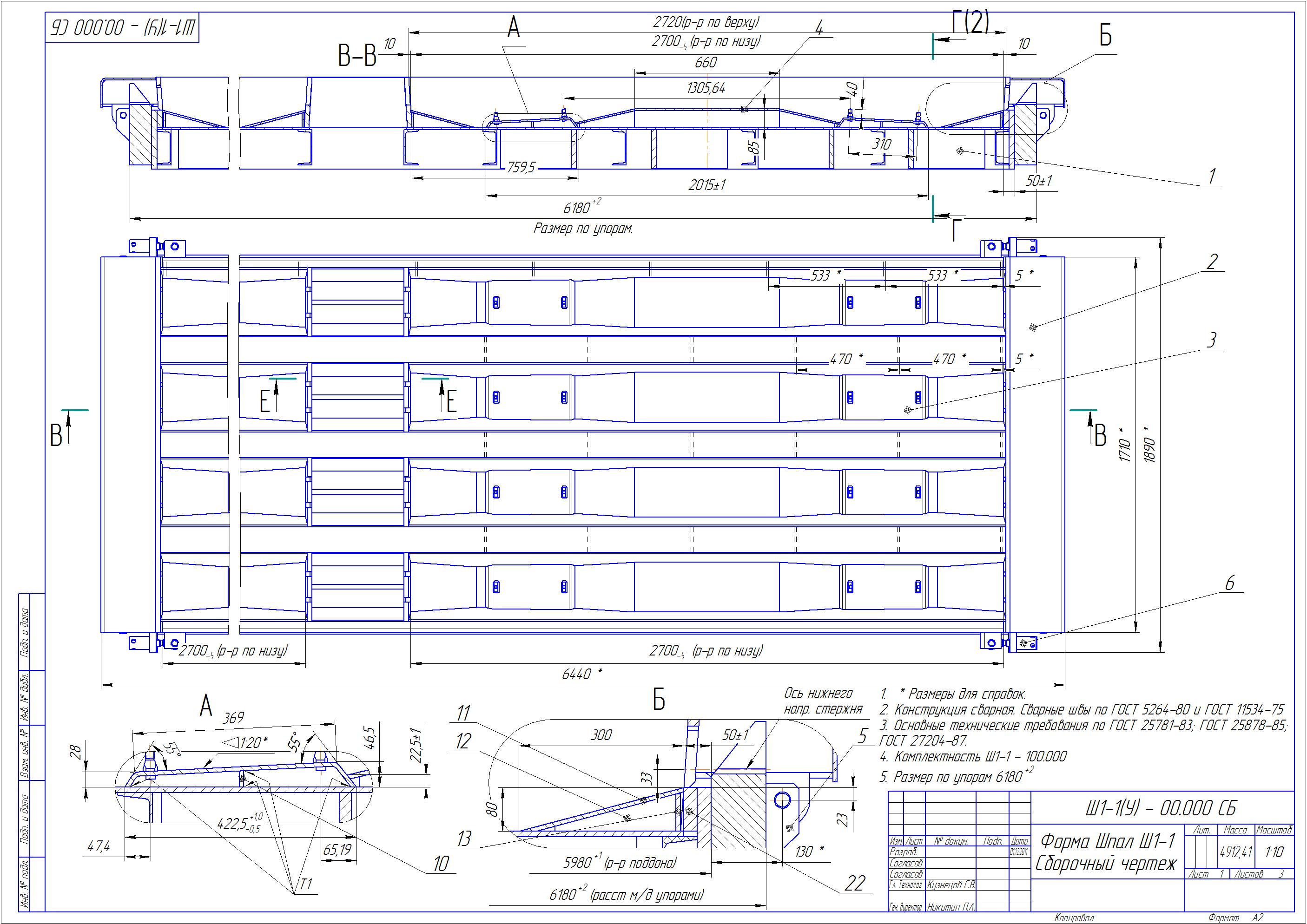
Металлоформа шпал

Используемые навыки:

Описание

8-ми местная форма для производства предварительно напряженных железобетонных шпал.

Презентация проекта

pic2963522.jpg
Форма Шпал Ш1-1 Сборочный чертеж.jpg

Оценили проект:

0