Работа 1513143
Для полной функциональности этого сайта необходимо включить JavaScript.
Москва
На сайте с: 04.06.2013
Софья Серёжкина
Sofia1
Рейтинг: 94
не верифицирован
Всего отзывов:
0
Выполнила заданий:
1
Опубликовала заданий:
4
Работ в портфолио:
44
Типовых услуг:
0
Работ на продажу:
0
Была на сайте:
2017-12-03 в 17:28
Предложить работу
Добавить в избранное
Добавить рекомендацию
Пожаловаться
Инженерия
7
0
Работа 1513143
Используемые навыки:
Чертежи/Схемы
Описание
Решение
Результат
Соавторы
Презентация проекта
Примеры реализации
Описание
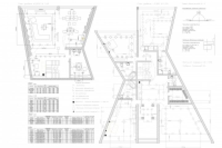
Расчет освещения для загородного дома
Презентация проекта
Оценили проект:
0
×
Оценили проект
×
Авторизация
Для того чтобы оценивать проекты, вам нужно войти на сайт
Другие проекты
Все проекты
Кухня в классическом стиле
Работа 1633875
Работа 1513117
FREELANCE.RU
Toggle navigation
Нанять фрилансера
Заказчику
Найти по специализации
Найти по услугам
Провести конкурс
Разместить задание
Виртуальный HR
Другое
Найти работу
Фрилансеру
Найти задание
Присоединиться к команде
Участвовать в конкурсе
Другое
Возможности
Для заказчика
Для фрилансера
Вход
Разместить задание
▲