Работай качественно - работай на имидж!

Александр Лобашов LobashovAV

Рейтинг: 66
не верифицирован
Всего отзывов: 0
  • Работ в портфолио: 6
  • Типовых услуг: 0
  • Работ на продажу: 0
Был на сайте:

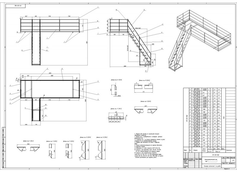
Лестничная площадка

Используемые навыки:

Описание

Металлоконструкция лестничной площадки.
Модель в SolidWorks, чертежи в Autocad.

Презентация проекта

pic3261997.jpg

Оценили проект:

0