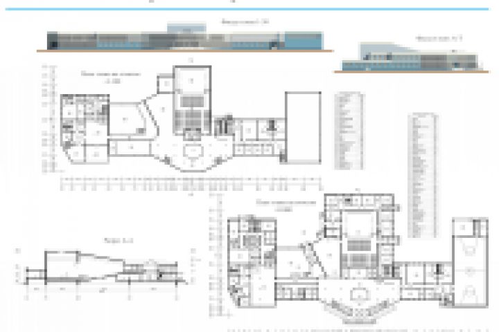
Объемно-планировочное решение досугового центра
Для полной функциональности этого сайта необходимо включить JavaScript.
Брест
На сайте с: 23.04.2016
ERA. Новый век-Новая линия!
ERAlineFox
Рейтинг: 129
не верифицирован
Всего отзывов:
0
Работ в портфолио:
89
Типовых услуг:
0
Работ на продажу:
0
Был на сайте:
2017-12-05 в 22:30
inbox
Предложить работу
Добавить в избранное
Добавить рекомендацию
Пожаловаться
Дизайн пространства
149
0
Объемно-планировочное решение досугового центра
Используемые навыки:
Архитектура зданий и сооружений
Описание
Решение
Результат
Соавторы
Презентация проекта
Примеры реализации
Описание
Презентация проекта
Оценили проект:
0
×
Оценили проект
×
Авторизация
Для того чтобы оценивать проекты, вам нужно войти на сайт
Другие проекты
Все проекты
Досуговый центр
Разработка жилого квартала
Мансардный коттедж "Ракушка"
FREELANCE.RU
Toggle navigation
Нанять фрилансера
Заказчику
Найти по специализации
Найти по услугам
Провести конкурс
Разместить задание
Виртуальный HR
Другое
Найти работу
Фрилансеру
Найти задание
Присоединиться к команде
Участвовать в конкурсе
Другое
Возможности
Для заказчика
Для фрилансера
Вход
Разместить задание
▲