Рейтинг: 53
не верифицирован
Всего отзывов: 0
  • Работ в портфолио: 3
  • Типовых услуг: 0
  • Работ на продажу: 0
Был на сайте:

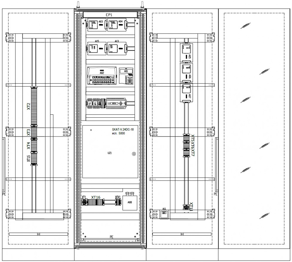
Шкаф пожарной автоматики для системы газового пожаротушения МКС

Используемые навыки:

Описание

Был разработан шкаф пожарной автоматики для системы газового пожаротушения. Алгоритмы пожаротушения реализованы на связке Сигнал-20М, С2000-КПБ, С2000М с применением сценариев управления. Так же организована линия связи при помощи С2000-ПИ для подключения С2000-БКИ в операторной.

Презентация проекта

pic2365892.jpg

Оценили проект:

0