Современный подход, всегда на шаг впереди!

Павел Воронин voronin_p.v

Рейтинг: 123
не верифицирован
Всего отзывов: 2 0
Выполнил заданий: 2
  • Работ в портфолио: 43
  • Типовых услуг: 0
  • Работ на продажу: 0
Был на сайте:

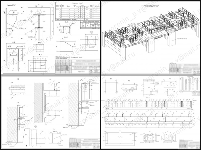
Металлоконструкции площадок обслуживания.

Используемые навыки:

Описание

Разработан проект марки "КМД" переходных площадок в ж/б здании.

Презентация проекта

pic2785547.jpg

Оценили проект:

0