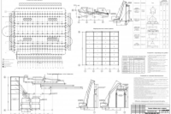
ТК на монтаж ЖБК
Для полной функциональности этого сайта необходимо включить JavaScript.
Кемерово
Алексей Князев
Kirysh
Рейтинг: 81
не верифицирован
Всего отзывов:
2
0
Выполнил заданий:
2
Опубликовал заданий:
5
Работ в портфолио:
11
Типовых услуг:
0
Работ на продажу:
0
Возраст:
33 года
Зарегистрирован:
22.05.2016
Был на сайте:
2018-01-23 в 11:13
Предложить работу
Добавить в избранное
Добавить рекомендацию
Пожаловаться
Инженерия
23
0
ТК на монтаж ЖБК
Используемые навыки:
Строительные конструкции
Описание
Решение
Результат
Соавторы
Презентация проекта
Примеры реализации
Описание
Презентация проекта
Оценили проект:
0
×
Оценили проект
×
Авторизация
Для того чтобы оценивать проекты, вам нужно войти на сайт
Другие проекты
Все проекты
Технологическая карта
ВК административного здания
Металлическое пром здание
FREELANCE.RU
Toggle navigation
Нанять фрилансера
Заказчику
Найти по специализации
Найти по услугам
Провести конкурс
Разместить задание
Виртуальный HR
Найти студию
Другое
Найти работу
Фрилансеру
Найти задание
Присоединиться к команде
Участвовать в конкурсе
Предложить услугу
Другое
Возможности
Для заказчика
Для фрилансера
Вход
Разместить задание
▲