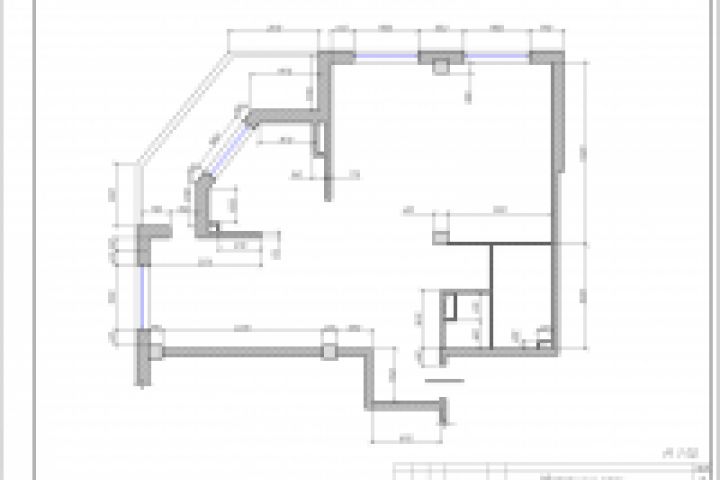
Чертежная документация. 3-х комнатная квартира.
Для полной функциональности этого сайта необходимо включить JavaScript.
36 лет
На сайте с: 16.05.2013
Андрей Алексеенко
AndreyAlekseenko
Рейтинг: 228
не верифицирован
Всего отзывов:
3
0
Выполнил заданий:
2
Активность:
Работ в портфолио:
113
Типовых услуг:
0
Работ на продажу:
0
Был на сайте:
2018-02-26 в 20:25
+38 099 292 36 45
inbox
andrei-alekseenko@mail.ru
www.hijinadesign.ru
Вконтакте
Предложить работу
Добавить в избранное
Добавить рекомендацию
Пожаловаться
Дизайн пространства
20
0
Чертежная документация. 3-х комнатная квартира.
Используемые навыки:
Архитектурное проектирование
Описание
Решение
Результат
Соавторы
Презентация проекта
Примеры реализации
Описание
Презентация проекта
Оценили проект:
0
×
Оценили проект
×
Авторизация
Для того чтобы оценивать проекты, вам нужно войти на сайт
Другие проекты
Все проекты
Чертежная документация. 3-х комнатная квартира.
Чертежная документация. 3-х комнатная квартира.
Портрет.
FREELANCE.RU
Toggle navigation
Нанять фрилансера
Заказчику
Найти по специализации
Найти по услугам
Провести конкурс
Разместить задание
Другое
Найти работу
Фрилансеру
Найти задание
Присоединиться к команде
Участвовать в конкурсе
Другое
Возможности
Для заказчика
Для фрилансера
Вход
Разместить задание
▲