Рейтинг: 108
не верифицирован
Всего отзывов: 0
  • Работ в портфолио: 38
  • Типовых услуг: 0
  • Работ на продажу: 0
Была на сайте:

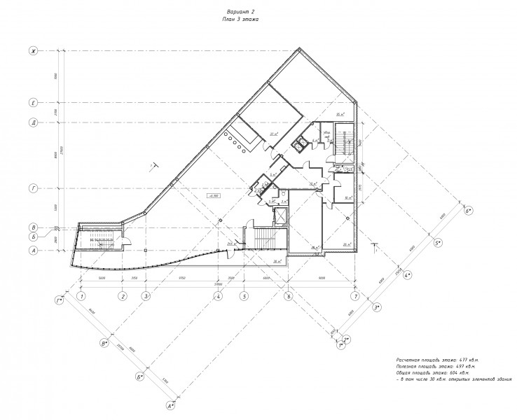
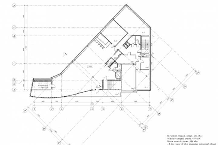
Пристройка общественного здания к стадиону "Динамо"

Описание

Здание пристраевается между южной и заподной трибунами стадиона "Динамо", с сохранением существующего проезда к стадиону.
На 1 и 2 этаже расположены технические помещения, на 2 этаже - ресторан, на 3 - офисы.

Ссылки на примеры реализации

 annstarovoitova.wixsite.com/portfolio/pristroika-k...

Презентация проекта

pic3392540.jpg

Оценили проект:

0