Рейтинг: 108
не верифицирован
Всего отзывов: 0
  • Работ в портфолио: 38
  • Типовых услуг: 0
  • Работ на продажу: 0
Была на сайте:

Реконструкция таунхауса

Описание

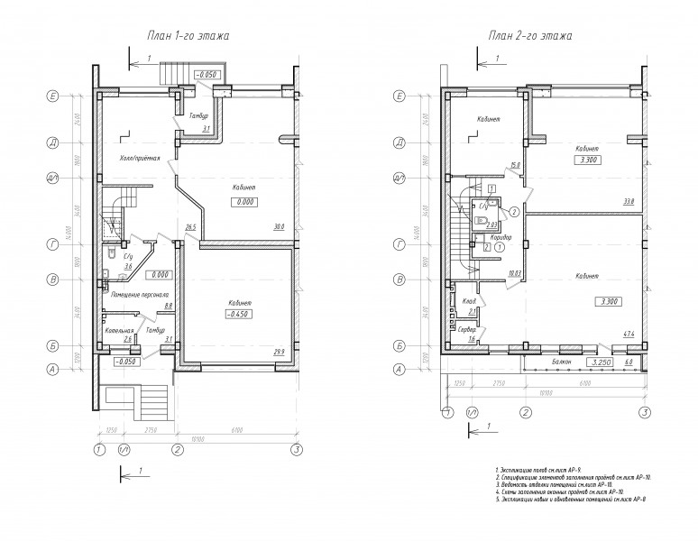
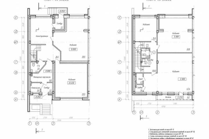
Реконструкция общественного здания предполагает:
-Устройство лестницы в мансардный этаж с пробивкой проема в монолитном перекрытии .
- Реконструкция подстропильных конструкций с уменьшением количества стоек подстропильных рам.
- Утепление ограждающих конструкций стропильной крыши.
- Устройство двух слуховых окон.
- Перемещение сан.узла на 2ом этаже.
- Создание эксплуатируемой мансарды (зал, сан.узел).
- Установка печи (по проекту фирмы-изготовителя).

Ссылки на примеры реализации

 annstarovoitova.wixsite.com/portfolio/rekonstrukci...

Презентация проекта

pic3392570.jpg

Оценили проект:

0