Рейтинг: 108
не верифицирован
Всего отзывов: 0
  • Работ в портфолио: 38
  • Типовых услуг: 0
  • Работ на продажу: 0
Была на сайте:

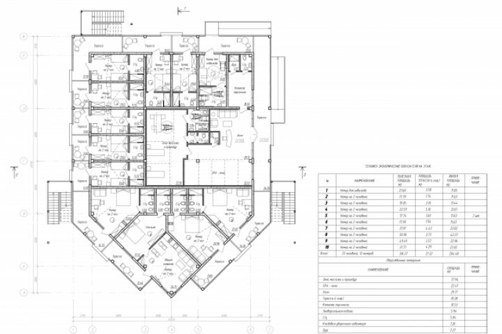
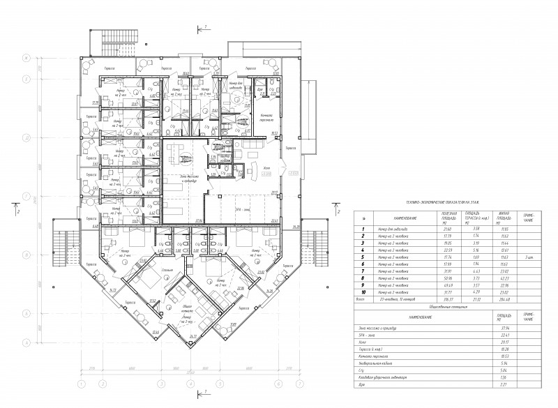
Эко-отель на базе отдыха "Сила озёр"

Описание

База отдыха «Сила Озер» находится в с. Светлое Завьяловского района, Алтайского края. На базе находится два озера - солёное и пресное.
Один из объектов запроектированных на базе - Эко-отель на 22 номера и трёхкомнатные апартаменты.
На площадке перед гостиницей находится бар и три бассейна (с солёной водой, с водой из скважины, с обычной)

Ссылки на примеры реализации

 annstarovoitova.wixsite.com/portfolio/ehko-otel

Презентация проекта

pic3392558.jpg

Оценили проект:

0