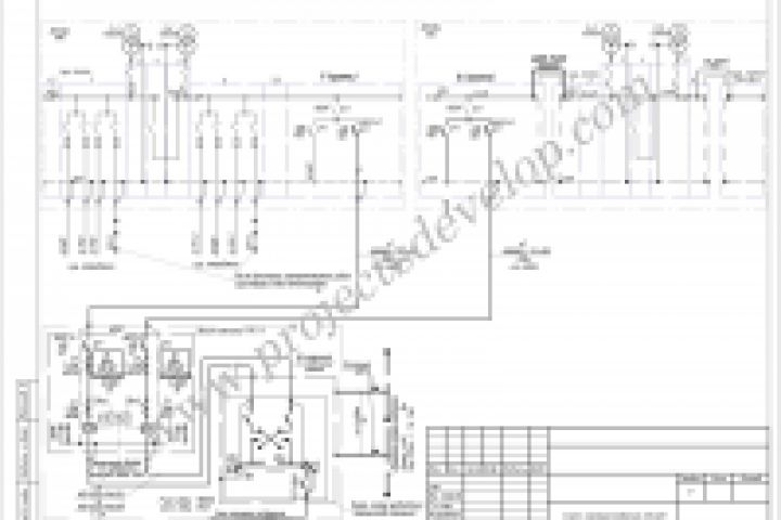
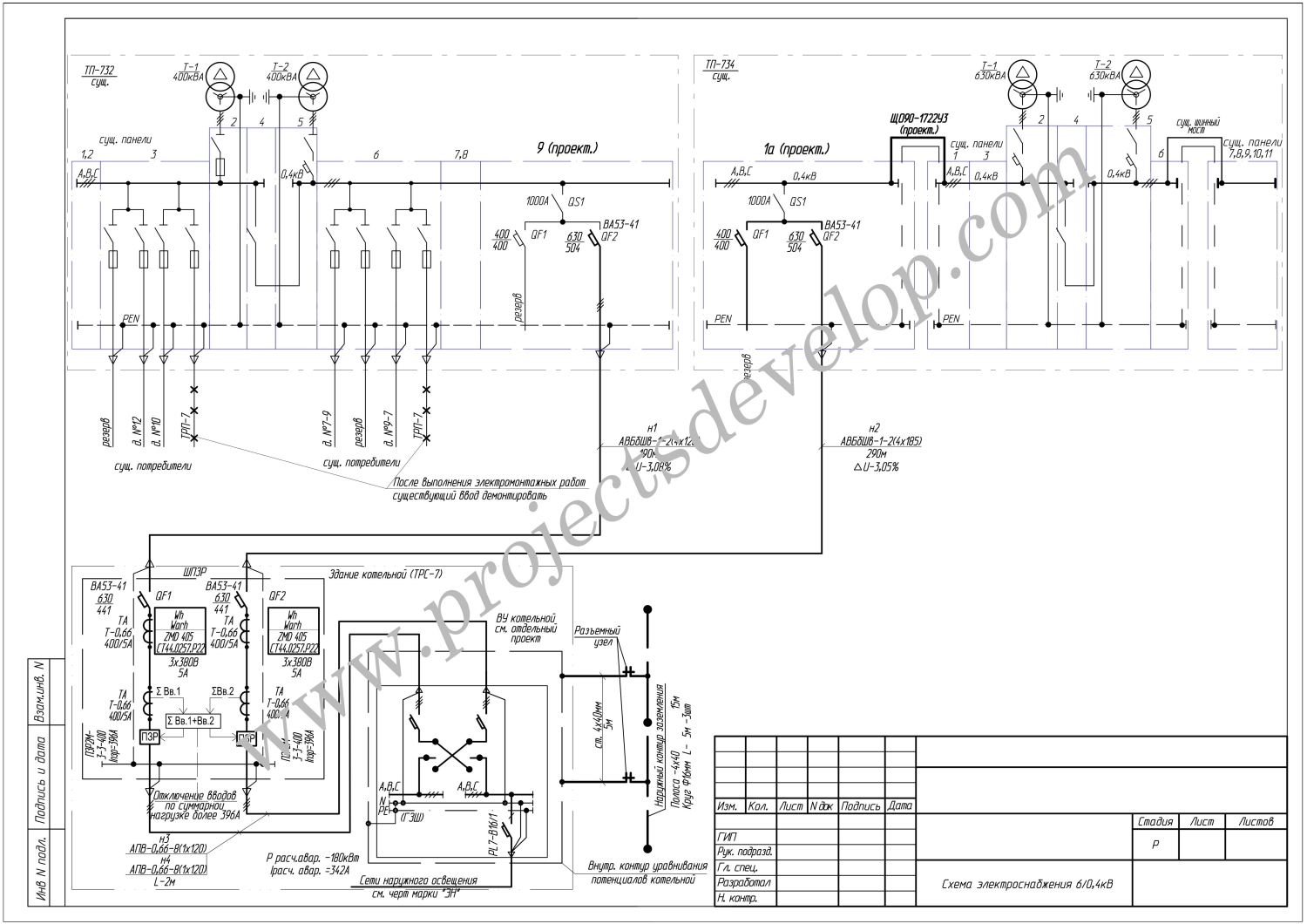
Котельная
Для полной функциональности этого сайта необходимо включить JavaScript.
Харьков
Проекты электроснабжения. Качественно, надежно, выгодно.
Дмитрий Туник
ProjectEM
Рейтинг: 180
не верифицирован
Всего отзывов:
2
0
Выполнил заданий:
2
Работ в портфолио:
100
Типовых услуг:
0
Работ на продажу:
0
Возраст:
41 год
Зарегистрирован:
12.02.2013
Был на сайте:
2018-04-04 в 15:40
Предложить работу
Добавить в избранное
Добавить рекомендацию
Пожаловаться
Инженерия
25
0
Котельная
Используемые навыки:
Проектирование объектов
Описание
Решение
Результат
Соавторы
Презентация проекта
Примеры реализации
Описание
Презентация проекта
Оценили проект:
0
×
Оценили проект
×
Авторизация
Для того чтобы оценивать проекты, вам нужно войти на сайт
Другие проекты
Все проекты
Амбулатория
Спецификация ЭО л. 4
Бассейн
FREELANCE.RU
Toggle navigation
Нанять фрилансера
Заказчику
Найти по специализации
Найти по услугам
Провести конкурс
Разместить задание
Виртуальный HR
Найти студию
Другое
Найти работу
Фрилансеру
Найти задание
Присоединиться к команде
Участвовать в конкурсе
Предложить услугу
Другое
Возможности
Для заказчика
Для фрилансера
Вход
Разместить задание
▲