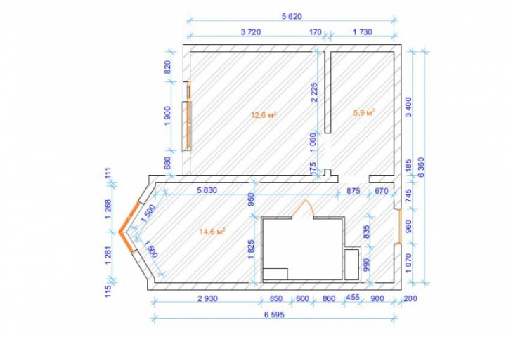
Обмерочный план.
Для полной функциональности этого сайта необходимо включить JavaScript.
Москва
На сайте с: 13.04.2018
Диана Аитова
diaitova
Рейтинг: 65
не верифицирован
Всего отзывов:
0
Работ в портфолио:
5
Типовых услуг:
0
Работ на продажу:
0
Была на сайте:
2018-04-15 в 16:32
inbox
Предложить работу
Добавить в избранное
Добавить рекомендацию
Пожаловаться
Дизайн пространства
9
0
Обмерочный план.
Описание
Решение
Результат
Соавторы
Презентация проекта
Примеры реализации
Описание
Квартира 41,5 кв.м
Презентация проекта
Оценили проект:
0
×
Оценили проект
×
Авторизация
Для того чтобы оценивать проекты, вам нужно войти на сайт
Другие проекты
Все проекты
Работа 3407280
Работа 3407283
Монтажный план расстановки розеток и выключателей.
FREELANCE.RU
Toggle navigation
Нанять фрилансера
Заказчику
Найти по специализации
Найти по услугам
Провести конкурс
Разместить задание
Виртуальный HR
Другое
Найти работу
Фрилансеру
Найти задание
Присоединиться к команде
Участвовать в конкурсе
Другое
Возможности
Для заказчика
Для фрилансера
Вход
Разместить задание
▲