Блочно-модульная котельная паропроизводительностью 10.000 т/ч
Для полной функциональности этого сайта необходимо включить JavaScript.
Ижевск
Андрей Волков
Izhevchanin
Рейтинг: 84
не верифицирован
Всего отзывов:
0
Работ в портфолио:
14
Типовых услуг:
0
Работ на продажу:
0
Возраст:
47 лет
Зарегистрирован:
07.02.2017
Был на сайте:
2018-04-18 в 14:53
inbox
Предложить работу
Добавить в избранное
Добавить рекомендацию
Пожаловаться
Инженерия
32
0
Блочно-модульная котельная паропроизводительностью 10.000 т/ч
Используемые навыки:
Промышленное и гражданское строительство
Описание
Решение
Результат
Соавторы
Презентация проекта
Примеры реализации
Описание
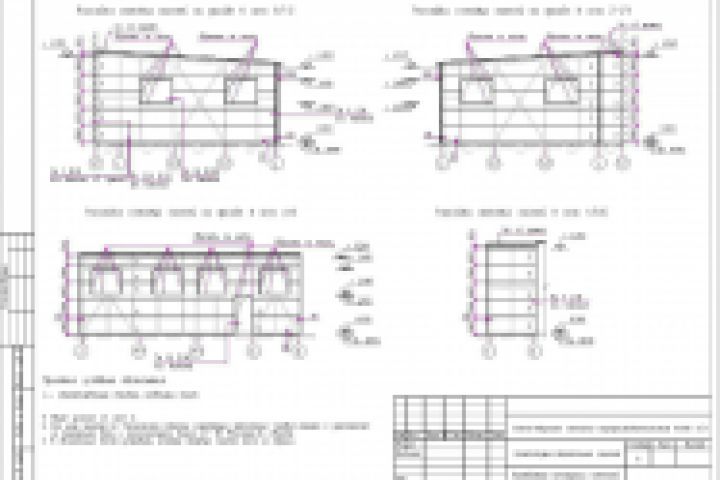
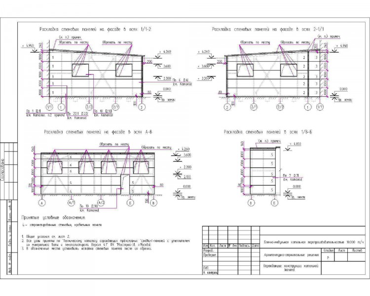
Ограждающие конструкции котельной (начало)
Презентация проекта
Оценили проект:
0
×
Оценили проект
×
Авторизация
Для того чтобы оценивать проекты, вам нужно войти на сайт
Другие проекты
Все проекты
Реконструкция теплосети от котельной.
Административно - бытовой корпус (база отдыха)
Техническое перевооружение убойного цеха.
FREELANCE.RU
Toggle navigation
Нанять фрилансера
Заказчику
Найти по специализации
Найти по услугам
Провести конкурс
Разместить задание
Виртуальный HR
Найти студию
Другое
Найти работу
Фрилансеру
Найти задание
Присоединиться к команде
Участвовать в конкурсе
Предложить услугу
Другое
Возможности
Для заказчика
Для фрилансера
Вход
Разместить задание
▲