Рейтинг: 76
не верифицирован
Всего отзывов: 1 0
Опубликовано заданий: 4
  • Работ в портфолио: 21
  • Типовых услуг: 0
  • Работ на продажу: 0
Был на сайте:

Световой фонарь в частном доме

Используемые навыки:

Описание

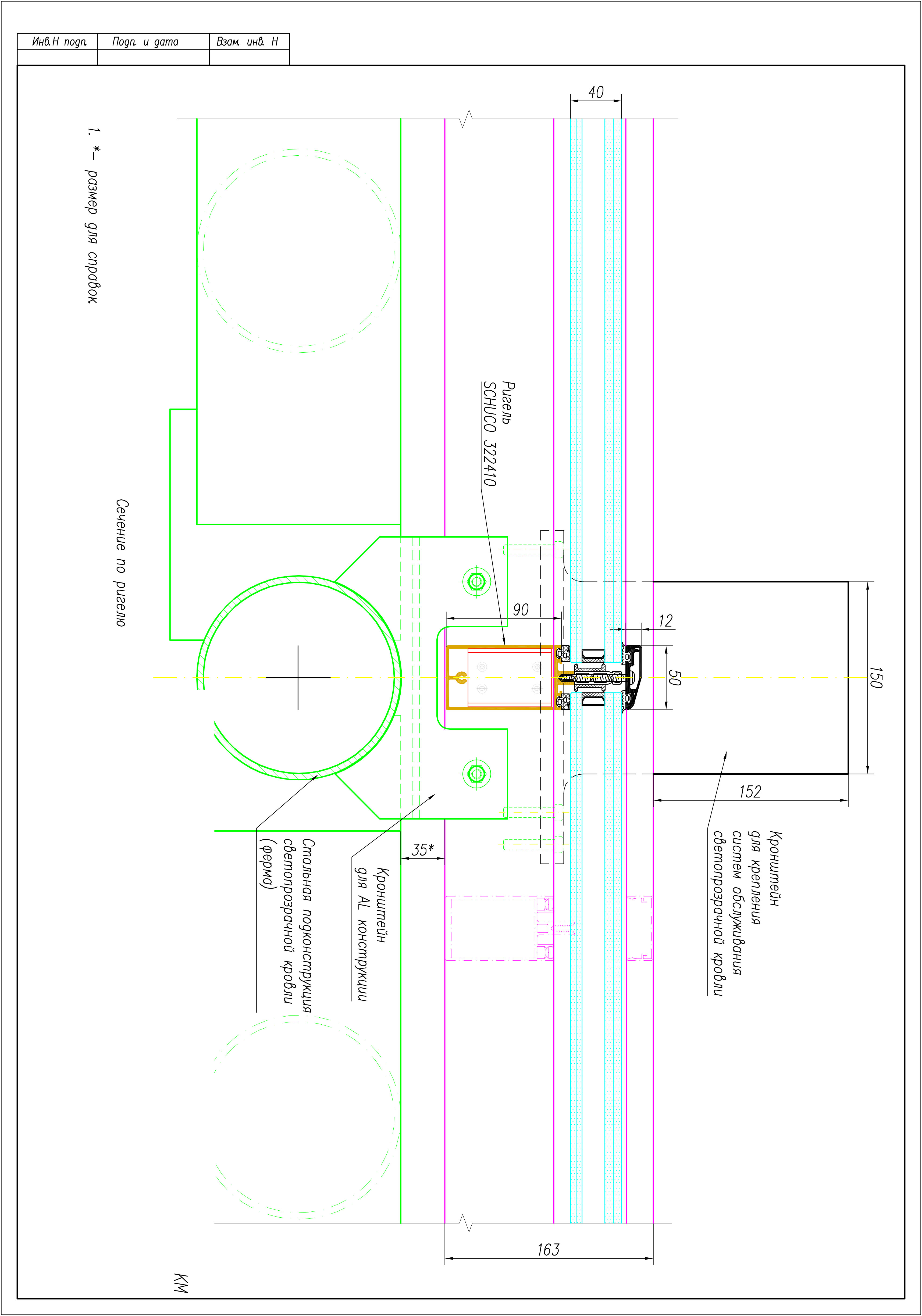
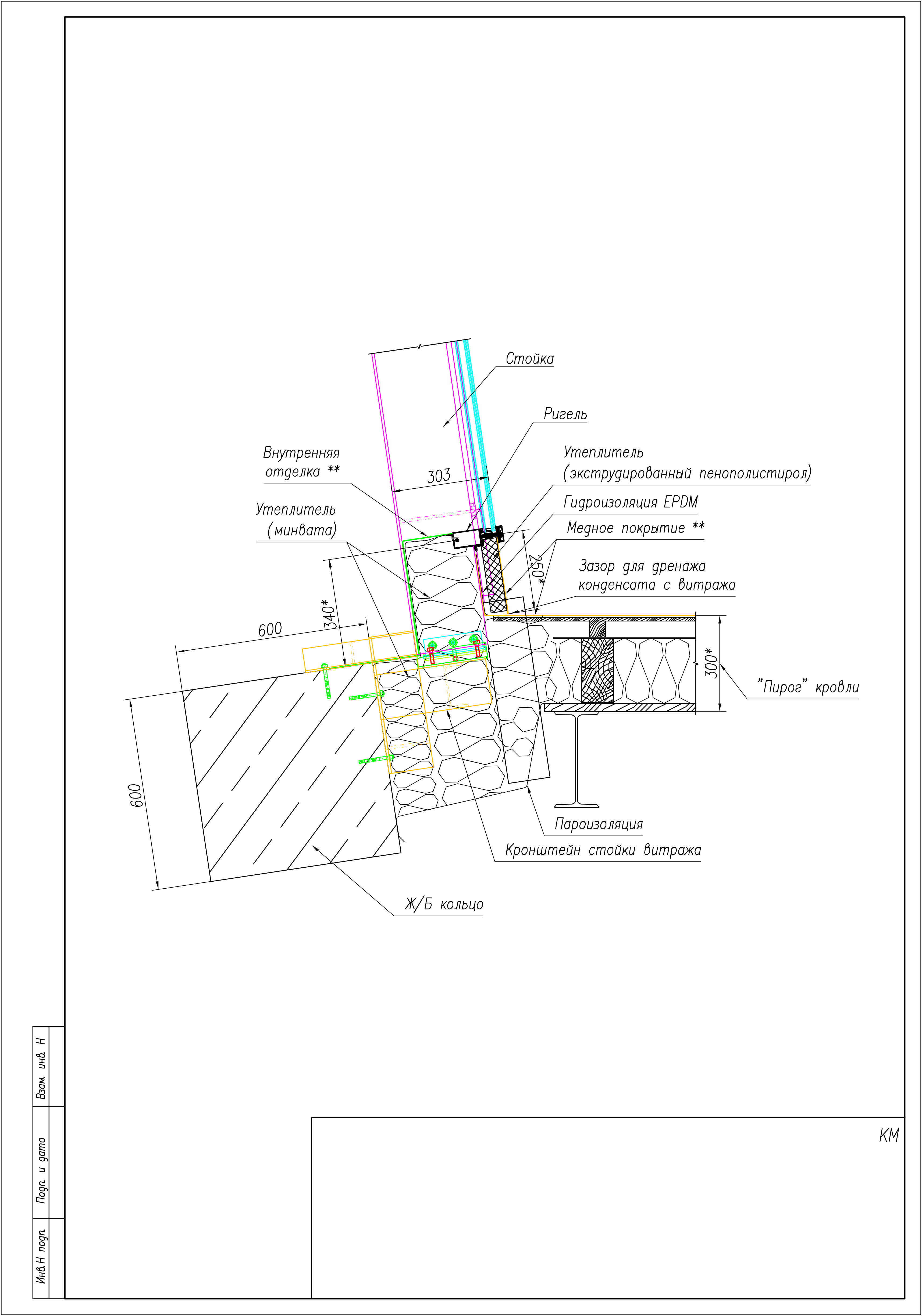
Фонарь выполнен из алюминиевой системы установленной на несущий стальной каркас

Презентация проекта

pic1851077.jpg
CF-4_Secheniya A-A (1).jpg
CF-4_Secheniya Сечения кровли (1).jpg
CF-4_Secheniya Сечения кровли (2) (1).jpg
CF-4_Secheniya У1 (1).jpg
CF-4_Secheniya У2 (1).jpg
CF-4_Secheniya У3 (1).jpg
CF-4_Secheniya У4 (1).jpg

Оценили проект:

0