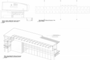
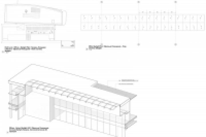
Светопрозрачный атриум в клинике
Для полной функциональности этого сайта необходимо включить JavaScript.
Чехов
На сайте с: 19.03.2014
Сергей Зотов
sergiochehov
Рейтинг: 76
не верифицирован
Всего отзывов:
1
0
Опубликовано заданий:
4
Работ в портфолио:
21
Типовых услуг:
0
Работ на продажу:
0
Был на сайте:
2018-04-28 в 18:32
Предложить работу
Добавить в избранное
Добавить рекомендацию
Пожаловаться
Инженерия
13
0
Светопрозрачный атриум в клинике
Используемые навыки:
Проектирование объектов
Описание
Решение
Результат
Соавторы
Презентация проекта
Примеры реализации
Описание
Презентация проекта
Оценили проект:
0
×
Оценили проект
×
Авторизация
Для того чтобы оценивать проекты, вам нужно войти на сайт
Другие проекты
Все проекты
Зенитный фонарь-пирамида в торговом центре
Загородный дом
Создание сайта стеклянной архитектуры
FREELANCE.RU
Toggle navigation
Нанять фрилансера
Заказчику
Найти по специализации
Найти по услугам
Провести конкурс
Разместить задание
Другое
Найти работу
Фрилансеру
Найти задание
Присоединиться к команде
Участвовать в конкурсе
Другое
Возможности
Для заказчика
Для фрилансера
Вход
Разместить задание
▲