Интерьер, который будет радовать долгие годы

Дарья Мельник dashmeli

Рейтинг: 65
не верифицирован
Всего отзывов: 0
  • Работ в портфолио: 15
  • Типовых услуг: 5
  • Работ на продажу: 0
  • Зарегистрирован: 14.06.2022
Была на сайте:

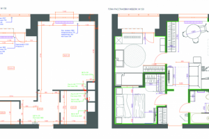
Проект перепланировки квартиры

Используемые навыки:

Описание

Из однокомнатной квартиры нужно было сделать двухкомнатную с отдельной спальней для родителей и детской для девочки + кухню-гостиную с возможностью разложить диван для гостей и просмотра фильмов.

В спальне удалось выделить место с небольшой гардеробной, также мы добавили в спальне окно под потолком для проникновения дневного света
Все желаемые зоны поместились, получилось уютное и визуально просторное пространство, полный проект можно посмотреть в моем портфолио по ссылке

Ссылки на примеры реализации

 www.inmyroom.ru/users/darya-kopytova-155201/portfo...

Презентация проекта

pic4308324.jpg
Безымянный-1.png

Оценили проект:

0