Проекты от профессиональной студии

Студия дизайна и проектирования "Лестис" lestis

Рейтинг: 72
не верифицирован
Всего отзывов: 0
  • Работ в портфолио: 32
  • Типовых услуг: 0
  • Работ на продажу: 0
Был на сайте:

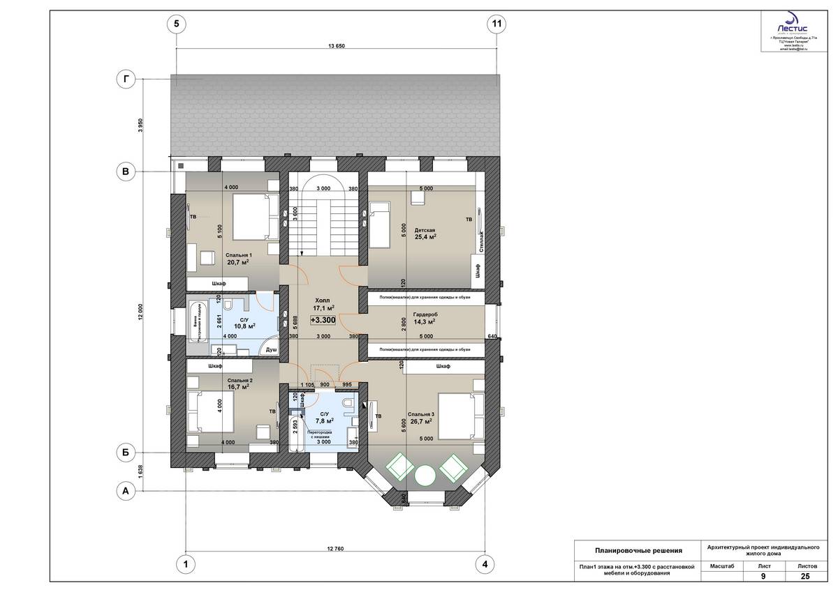
Архитектурный проект частного дома в г. Переславль

Используемые навыки:

Описание

Данный проект изначально разрабатывался, как целый комплекс работ, включающий в себя не только дом, но и прилегающие к нему объекты и ландшафт. Студия «Лестис» разработала архитектурный проект дома, бани, гаража, ворот и ограждения, запроектировала расположение этих объектов и ландшафт. Всё это разрабатывалось в одном ансамбле, чтобы создать целостную структуру и сохранить один стиль.

Презентация проекта

pic3373857.jpg

Оценили проект:

0