Рейтинг: 115
не верифицирован
Всего отзывов: 0
  • Активность:
  • Работ в портфолио: 25
  • Типовых услуг: 0
  • Работ на продажу: 0
Была на сайте:

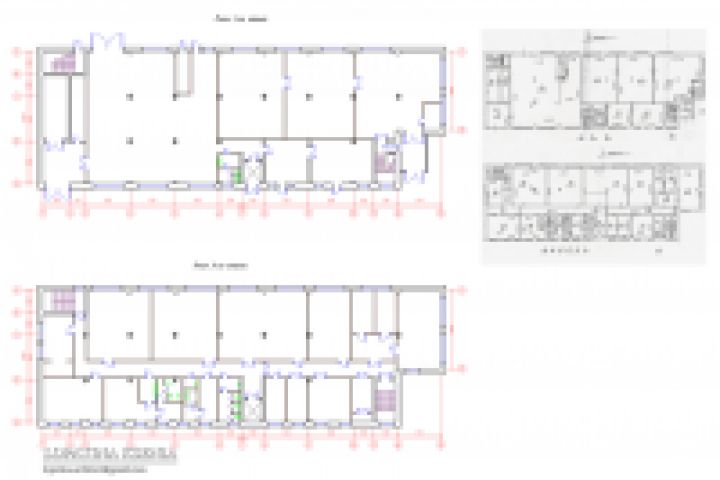
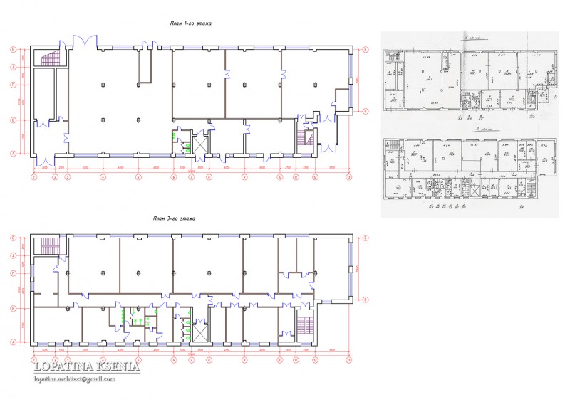
Оцифровка чертежа. Здание (2 этажа).

Используемые навыки:

Описание

Оцифровка чертежа в AutoCad по сканированному изображению.
Чертеж выполнен в слоях и стилях по образцу, предоставленному заказчиком.
Так же в задание входила расстановка осей и межосевых размеров, которые не присутствовали на оригинале.
Срок - 1 дн.

Презентация проекта

pic2492165.jpg

Оценили проект:

0