Рейтинг: 68
не верифицирован
Всего отзывов: 0
Опубликовала заданий: 2
  • Работ в портфолио: 8
  • Типовых услуг: 0
  • Работ на продажу: 0
Была на сайте:

Дизайн интерьера медицинского центра

Используемые навыки:

Описание

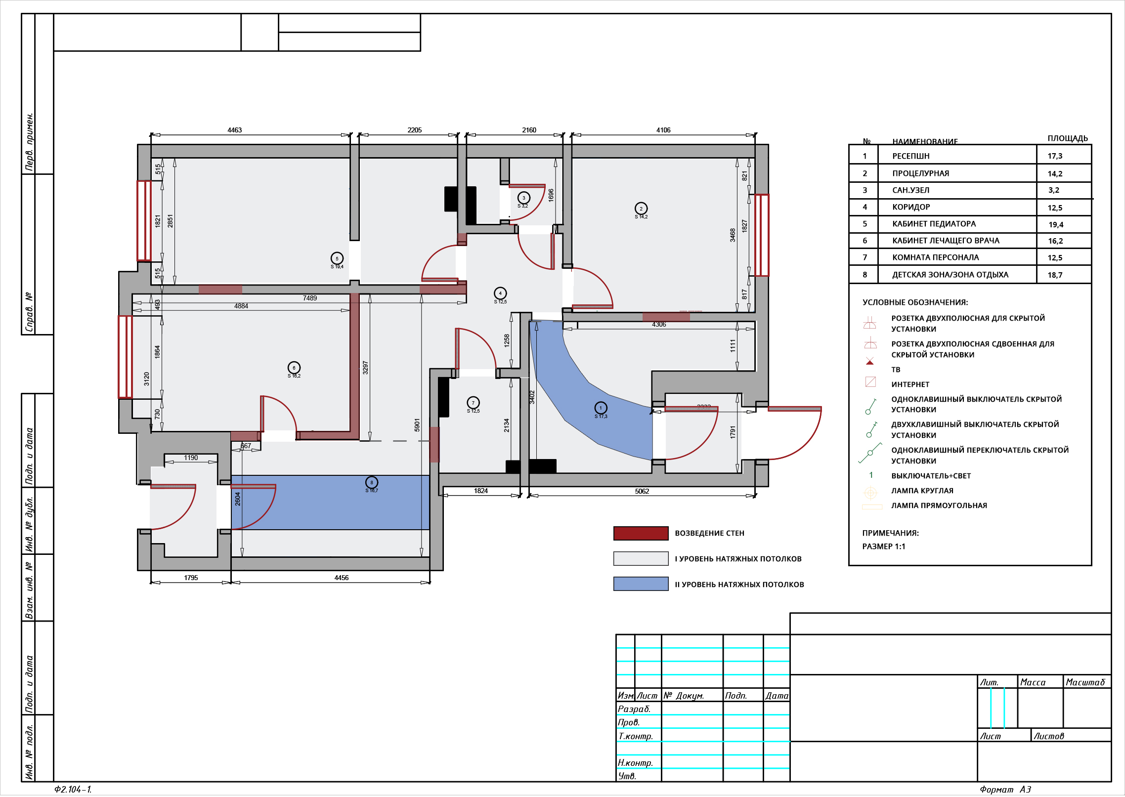
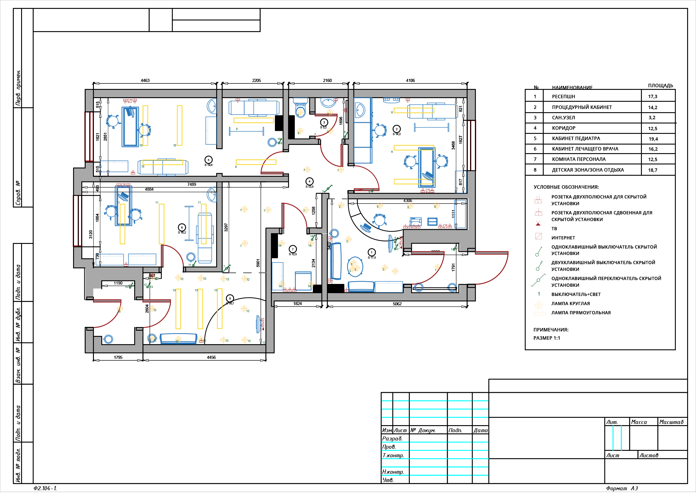
Проект медицинского центра в Мурино (Ленинградская область) — это современные помещения, отделочные материалы и оборудование, а также дизайн, подчеркивающий концепцию этого проекта. Для того, чтобы обеспечить полное представление о том, как будет выглядеть будущий дизайн помещений, была проведена фотореалистичная визуализация интерьера.

Площадь: 100 кв.м.

Представлено 18 рендеров, 3 плана помещения и рекомендации по закупке отделочных материалов и мебели.

Презентация проекта

pic3327525.jpg
Медцентр 19112017-27.JPG
Медцентр 16112017-23.JPG
Медцентр 16112017-22.JPG
Медцентр 12112017-17.JPG
Медцентр 16112017-19.JPG
Медцентр 12112017-16.JPG
Медцентр 12112017-11.JPG
Медцентр 12112017-12.JPG
Медцентр 12112017-14.jpg
Медцентр 12112017-15.JPG
Мед центр Коммуникации.jpg
Мед центр Мебель.jpg
Мед центр Потолки-Стены.jpg

Оценили проект:

0