Рейтинг: 73
не верифицирован
Всего отзывов: 0
  • Работ в портфолио: 3
  • Типовых услуг: 0
  • Работ на продажу: 0
Была на сайте:

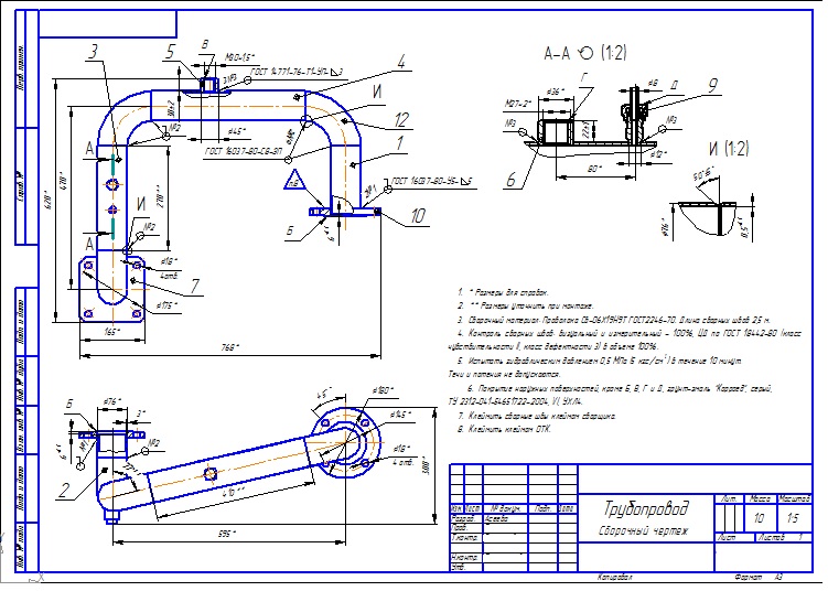
Деталировка компрессорной установки

Описание

Разработка деталей компрессорной установки (поршень в сборе, трубопровод водяной и газовый, цылиндры, коленвал и тд)

Презентация проекта

pic3366550.jpg
Трубопровод.jpg

Оценили проект:

0