Мы создаём стиль жизни, о котором вы мечтали

ООО Александерс egor2505

Рейтинг: 2 641
Верифицирован через Сбер ID
Всего отзывов: 1 0
  • Активность:
  • Работ в портфолио: 108
  • Типовых услуг: 0
  • Работ на продажу: 0
  • Стаж работы: 19 лет
  • Зарегистрирован: 22.03.2023
  • Образование: Магистратура
  • Юридический статус:ИП
Был на сайте:

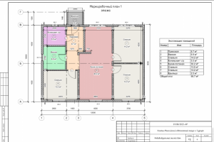
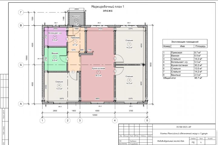
АР+КР Каркасный дом

Используемые навыки:

Описание

АР+КР Каркасный дом

Ссылки на примеры реализации

 disk.yandex.com.am/d/9UlmFRCqYSh2Wg

Презентация проекта

pic4490297.jpg

Оценили проект:

0