Рейтинг: 74
не верифицирован
Всего отзывов: 0
Опубликовал заданий: 1
  • Работ в портфолио: 4
  • Типовых услуг: 0
  • Работ на продажу: 0
Был на сайте:

ИД на лестничные марши

Используемые навыки:

Описание

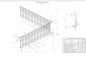
Подготовка комплекта исполнительных схем по устройству лестничных маршей на обьекте Заказчика
Состав:
Титульный лист
Разрез 1-1 поэтажный план здания
Общий вид лестничного марша и вид сбоку
Спецификация
Акты освидетельствования скрытых работ
Документация на материалы

Презентация проекта

pic3346516.jpg
ИД-Разрез 1-1.jpg

Оценили проект:

0