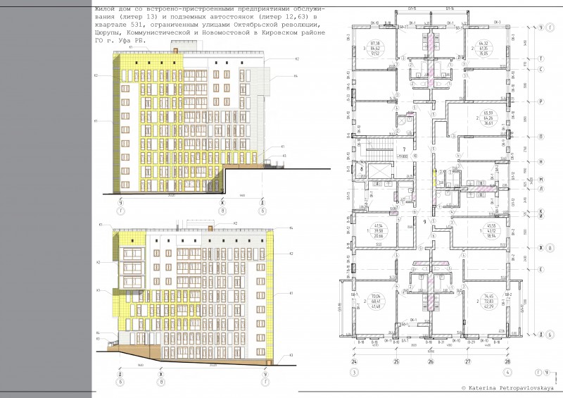
Работа 2650585
Для полной функциональности этого сайта необходимо включить JavaScript.
Уфа
На сайте с: 22.01.2016
Могу копать, могу не копать :)
Екатерина Петропавловская
petropavlovskar
Рейтинг: 61
не верифицирован
Всего отзывов:
0
Работ в портфолио:
21
Типовых услуг:
0
Работ на продажу:
0
Был на сайте:
2018-07-23 в 18:45
inbox
katya.petropavlovskaya@ya.ru
Предложить работу
Добавить в избранное
Добавить рекомендацию
Пожаловаться
Дизайн пространства
8
0
Работа 2650585
Используемые навыки:
Архитектурное проектирование
Описание
Решение
Результат
Соавторы
Презентация проекта
Примеры реализации
Описание
Презентация проекта
Оценили проект:
0
×
Оценили проект
×
Авторизация
Для того чтобы оценивать проекты, вам нужно войти на сайт
Другие проекты
Все проекты
Работа 2650587
Работа 2650579
Работа 2650578
FREELANCE.RU
Toggle navigation
Нанять фрилансера
Заказчику
Найти по специализации
Найти по услугам
Провести конкурс
Разместить задание
Виртуальный HR
Другое
Найти работу
Фрилансеру
Найти задание
Присоединиться к команде
Участвовать в конкурсе
Другое
Возможности
Для заказчика
Для фрилансера
Вход
Разместить задание
▲