Рейтинг: 64
не верифицирован
Всего отзывов: 0
Опубликовал заданий: 1
  • Работ в портфолио: 4
  • Типовых услуг: 0
  • Работ на продажу: 0
  • Возраст: 43 года
  • Зарегистрирован: 21.01.2016
Был на сайте:

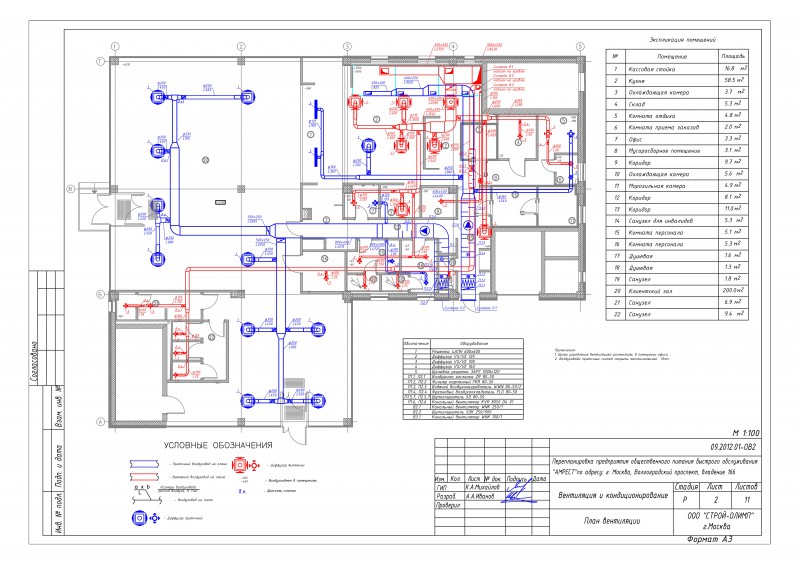
Проект вентиляции и кондиционирования ресторана "KFC Drive"

Описание

Проект второго в России ресторана "KFC Drive". Расчет горячих цехов по рекомендациям АВОК.

Презентация проекта

pic3098111.jpg

Оценили проект:

0