Проектирование систем отопления, вентиляции, теплоснабжения,

Владимир Созонов sozonov72

Рейтинг: 91
не верифицирован
Всего отзывов: 0
  • Работ в портфолио: 21
  • Типовых услуг: 0
  • Работ на продажу: 0
Был на сайте:

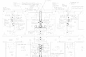
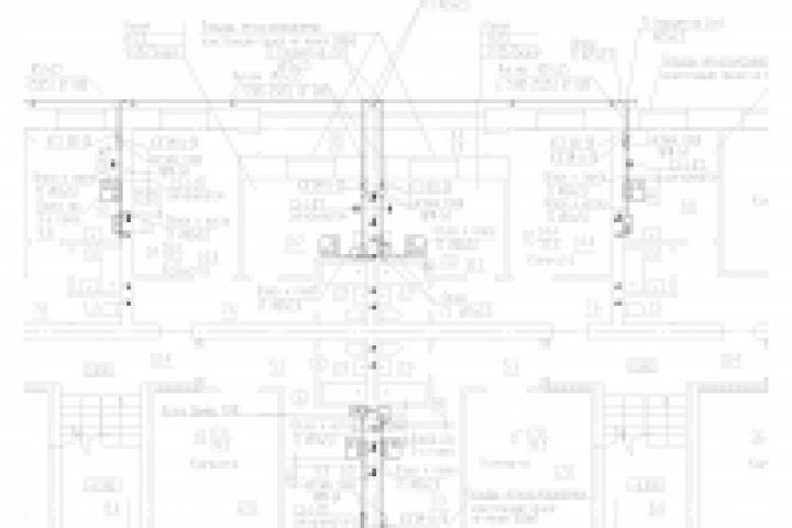
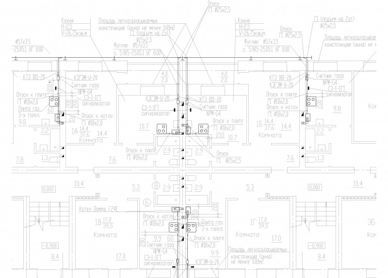
Газоснабжение 16 квартирного жилого дома (по квартирное отопл

Описание

В рабочем проекте разрабатывается внутреннее газооборудование проектируемого 16-квартирного жилого дома. В кухне каждой квартиры устанавливается плита газовая 3- горелочная бытовая с духовым отделением и двухконтурный котел Domina F24E мощностью 24кВт.

Презентация проекта

pic2258633.jpg

Оценили проект:

0