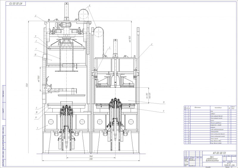
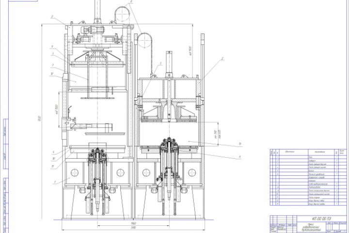
Пресс
Для полной функциональности этого сайта необходимо включить JavaScript.
Ростов-на-Дону
На сайте с: 28.01.2020
Тарас Соболь
sobtv
Рейтинг: 133
не верифицирован
Всего отзывов:
0
Выполнил заданий:
2
Нейросаммари
Активность:
Работ в портфолио:
13
Типовых услуг:
0
Работ на продажу:
0
Был на сайте:
2025-05-23 в 08:25
+79198804420
inbox
Предложить работу
Добавить в избранное
Добавить рекомендацию
Пожаловаться
Инженерия
27
0
Пресс
Используемые навыки:
Чертежи/Схемы
Описание
Решение
Результат
Соавторы
Презентация проекта
Примеры реализации
Описание
Оцифровка гидравлического пресса
Презентация проекта
Оценили проект:
0
×
Оценили проект
×
Авторизация
Для того чтобы оценивать проекты, вам нужно войти на сайт
Другие проекты
Все проекты
План наружного освещения
Электроснабжение Офиса
КД на шкафы ИБП
FREELANCE.RU
Toggle navigation
Нанять фрилансера
Заказчику
Найти по специализации
Найти по услугам
Провести конкурс
Разместить задание
Другое
Найти работу
Фрилансеру
Найти задание
Присоединиться к команде
Участвовать в конкурсе
Другое
Возможности
Для заказчика
Для фрилансера
Вход
Разместить задание
▲