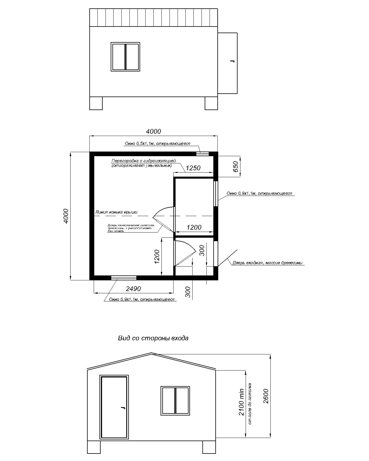
Небольшой дачный домик
Для полной функциональности этого сайта необходимо включить JavaScript.
Москва
46 лет
На сайте с: 12.03.2016
Решение нестандартных задач, подготовка заявок для патентования
Михаил Моркин
Mion
Рейтинг: 108
не верифицирован
Всего отзывов:
0
Активность:
Работ в портфолио:
28
Типовых услуг:
0
Работ на продажу:
0
Был на сайте:
2018-11-17 в 21:37
inbox
mihail_mk@mail.ru
Предложить работу
Добавить в избранное
Добавить рекомендацию
Пожаловаться
Дизайн пространства
25
0
Небольшой дачный домик
Используемые навыки:
Промышленный дизайн
Описание
Решение
Результат
Соавторы
Презентация проекта
Примеры реализации
Описание
Презентация проекта
Оценили проект:
0
×
Оценили проект
×
Авторизация
Для того чтобы оценивать проекты, вам нужно войти на сайт
Другие проекты
Все проекты
Небольшой домик
Контейнер для мусора
Начертательная геометрия
FREELANCE.RU
Toggle navigation
Нанять фрилансера
Заказчику
Найти по специализации
Найти по услугам
Провести конкурс
Разместить задание
Виртуальный HR
Другое
Найти работу
Фрилансеру
Найти задание
Присоединиться к команде
Участвовать в конкурсе
Предложить услугу
Другое
Возможности
Для заказчика
Для фрилансера
Вход
Разместить задание
▲