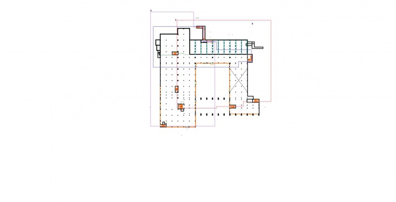
План цокольного этажа
Для полной функциональности этого сайта необходимо включить JavaScript.
Москва
32 года
На сайте с: 12.09.2015
Всегда делай свою работу хорошо
Мария Лебедева
desacro
Рейтинг: 131
не верифицирован
Всего отзывов:
0
Работ в портфолио:
61
Типовых услуг:
0
Работ на продажу:
0
Была на сайте:
2018-11-26 в 18:15
89055310552
inbox
2325990@mail.ru
Предложить работу
Добавить в избранное
Добавить рекомендацию
Пожаловаться
Инженерия
9
0
План цокольного этажа
Используемые навыки:
Проектирование объектов
Описание
Решение
Результат
Соавторы
Презентация проекта
Примеры реализации
Описание
Презентация проекта
Оценили проект:
0
×
Оценили проект
×
Авторизация
Для того чтобы оценивать проекты, вам нужно войти на сайт
Другие проекты
Все проекты
Работа 2489330
план 2-ого этажа
План разводки отопления (теплые полы)
FREELANCE.RU
Toggle navigation
Нанять фрилансера
Заказчику
Найти по специализации
Найти по услугам
Провести конкурс
Разместить задание
Виртуальный HR
Другое
Найти работу
Фрилансеру
Найти задание
Присоединиться к команде
Участвовать в конкурсе
Другое
Возможности
Для заказчика
Для фрилансера
Вход
Разместить задание
▲