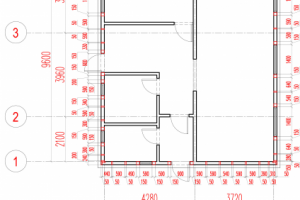
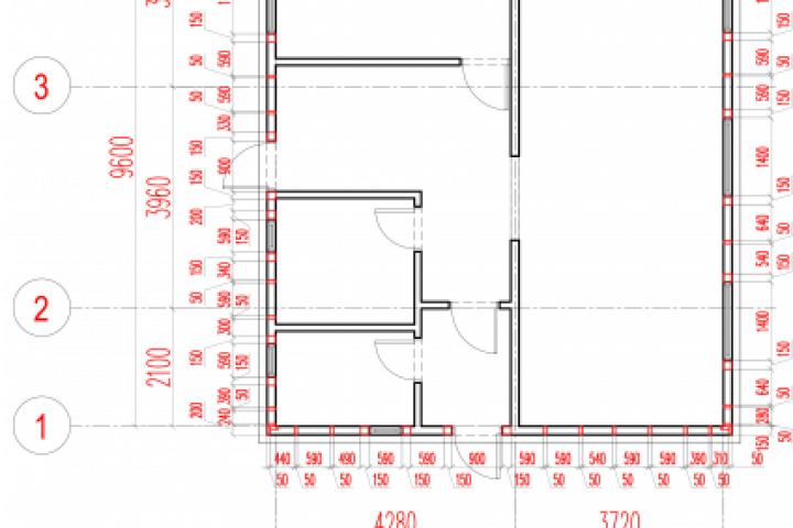
Каркасный дом , стойки наружных стен
Для полной функциональности этого сайта необходимо включить JavaScript.
Москва
39 лет
На сайте с: 21.03.2016
Мария Воронина
MaSHaVoronina
Рейтинг: 131
не верифицирован
Всего отзывов:
2
0
Выполнила заданий:
1
Опубликовала заданий:
1
Работ в портфолио:
51
Типовых услуг:
0
Работ на продажу:
0
Была на сайте:
2018-11-28 в 13:42
Предложить работу
Добавить в избранное
Добавить рекомендацию
Пожаловаться
Дизайн пространства
18
0
Каркасный дом , стойки наружных стен
Используемые навыки:
Архитектурное проектирование
Описание
Решение
Результат
Соавторы
Презентация проекта
Примеры реализации
Описание
Презентация проекта
Оценили проект:
0
×
Оценили проект
×
Авторизация
Для того чтобы оценивать проекты, вам нужно войти на сайт
Другие проекты
Все проекты
Каркасный дом, перекрытие 1 этажа
Быстрый 3D эскиз генплана частного земельного участка.
Дачный дом.
FREELANCE.RU
Toggle navigation
Нанять фрилансера
Заказчику
Найти по специализации
Найти по услугам
Провести конкурс
Разместить задание
Виртуальный HR
Другое
Найти работу
Фрилансеру
Найти задание
Присоединиться к команде
Участвовать в конкурсе
Другое
Возможности
Для заказчика
Для фрилансера
Вход
Разместить задание
▲