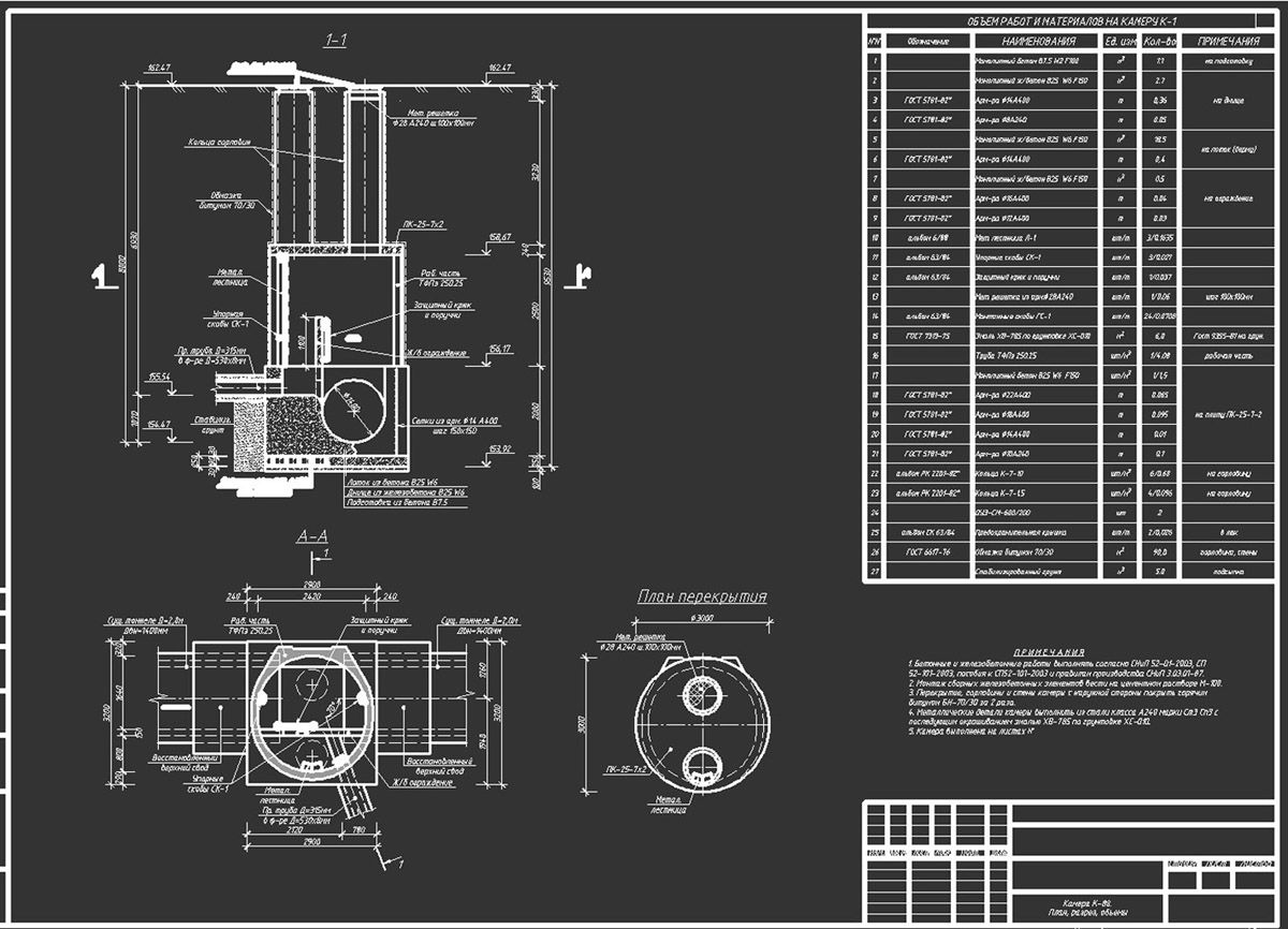
Конструктив канализационной камеры
Для полной функциональности этого сайта необходимо включить JavaScript.
Москва
Проектирование инженерных систем и сооружений
Валерий Архипов
arxi5
Рейтинг: 236
не верифицирован
Всего отзывов:
0
Активность:
Работ в портфолио:
147
Типовых услуг:
0
Работ на продажу:
0
Зарегистрирован:
12.08.2013
Был на сайте:
2018-12-27 в 15:27
Предложить работу
Добавить в избранное
Добавить рекомендацию
Пожаловаться
Инженерия
38
0
Конструктив канализационной камеры
Используемые навыки:
Строительные конструкции
Описание
Решение
Результат
Соавторы
Презентация проекта
Примеры реализации
Описание
Презентация проекта
Оценили проект:
0
×
Оценили проект
×
Авторизация
Для того чтобы оценивать проекты, вам нужно войти на сайт
Другие проекты
Все проекты
Стройгенплан инженерных сетей ЖК Мичурино
ТХ КНС55
Узлы сопряжения футляров
FREELANCE.RU
Toggle navigation
Нанять фрилансера
Заказчику
Найти по специализации
Найти по услугам
Провести конкурс
Разместить задание
Виртуальный HR
Найти студию
Другое
Найти работу
Фрилансеру
Найти задание
Присоединиться к команде
Участвовать в конкурсе
Предложить услугу
Другое
Возможности
Для заказчика
Для фрилансера
Вход
Разместить задание
▲