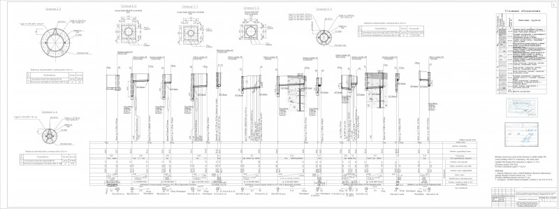
Профили выпусков ГК
Для полной функциональности этого сайта необходимо включить JavaScript.
Москва
Проектирование инженерных систем и сооружений
Валерий Архипов
arxi5
Рейтинг: 236
не верифицирован
Всего отзывов:
0
Активность:
Работ в портфолио:
147
Типовых услуг:
0
Работ на продажу:
0
Зарегистрирован:
12.08.2013
Был на сайте:
2018-12-27 в 15:27
Предложить работу
Добавить в избранное
Добавить рекомендацию
Пожаловаться
Инженерия
40
0
Профили выпусков ГК
Используемые навыки:
Водоснабжение и водоотведение
Описание
Решение
Результат
Соавторы
Презентация проекта
Примеры реализации
Описание
Презентация проекта
Оценили проект:
0
×
Оценили проект
×
Авторизация
Для того чтобы оценивать проекты, вам нужно войти на сайт
Другие проекты
Все проекты
Стройгенплан сетей водоотведения жилого комплекса
Узел крепления котлована.
Авторский надзор на строительстве
FREELANCE.RU
Toggle navigation
Нанять фрилансера
Заказчику
Каталог фрилансеров
Каталог PRO
Каталог студий
Каталог услуг
Каталог работ
Виртуальный HR
Умный поиск
Провести конкурс
Разместить задание
Найти работу
Найти задание
Присоединиться к команде
Участвовать в конкурсе
Предложить услугу
Вход
Разместить задание
▲