Создавать - моё предназначение

Екатерина Куликова kateykacool

Рейтинг: 127
не верифицирован
Всего отзывов: 0
  • Работ в портфолио: 57
  • Типовых услуг: 0
  • Работ на продажу: 0
Была на сайте:

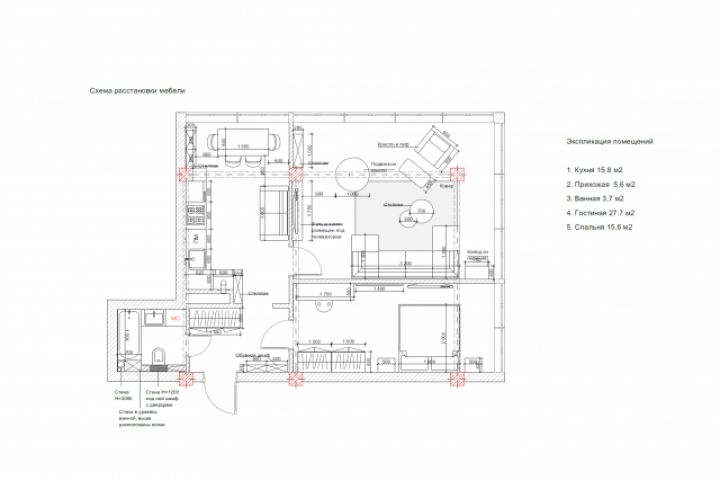
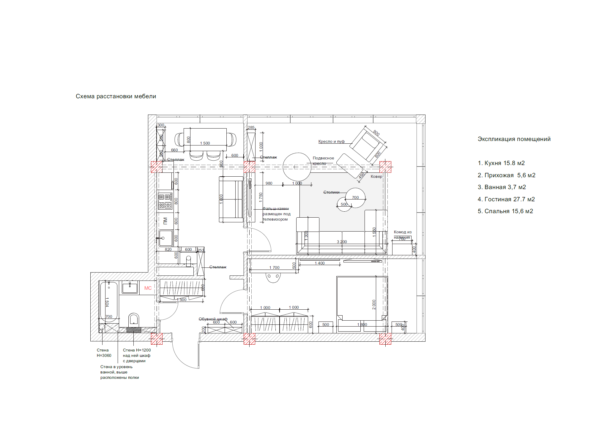
Планировочное решение для квартиры площадью до 100м2

Используемые навыки:

Описание

Планировочное решение для двухкомнатной квартиры площадью до 100 м2 планировка (2 варианта, по ним разрабатывается 3 финальный, с учетом замечаний)
- план монтажа
- план демонтажа
- план расстановки мебели
До 50м2 - 10 000 руб.
До 75м2 - 12 000 руб
До 100м2 - 15 000 руб
до 150м5 - 20 000 руб

Презентация проекта

pic3441440.jpg
расстановка мебели.png

Оценили проект:

0